+5 fotó
Hirdetéskód: 7999516
Referenciaszám: 109658
Frissítve: 1 napja
Aszaló eladó családi ház 1+1 fél szobás: 9,66 millió Ft
9,66 millió Ft
134 167 Ft/m²
72 m²
1+1 fél szoba
Eladó 72 m2 családi ház, Aszaló
Miskolctól kb. 18 km-re, Aszalón, a Rákóczi Ferenc utcába eladó egy 72 m2-es, egykor takarékszövetkezetként működő, de egyéb módon is hasznosítható lakóház.
Irányár: 9.660.000, -Ft + áfa
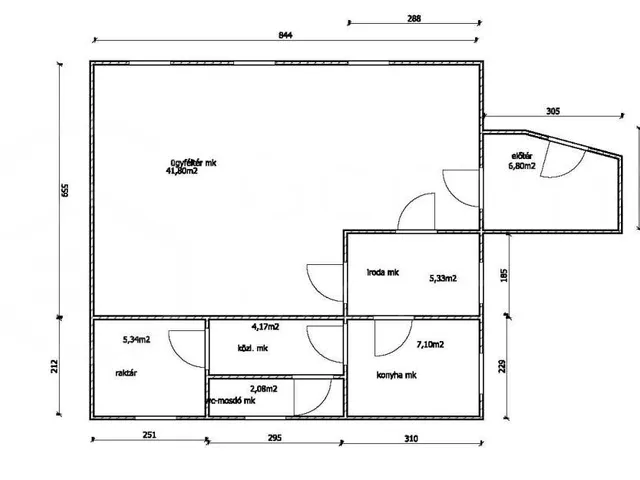
Helyiség lista:
- előtér
- iroda
- ügyféltér
- konyha
- WC.-mosdó
- raktár
- közlekedő
Műszaki leírás:
A kínált ingatlan 1990-es években épült, földszint tagolódású, tégla falazatú, összetett tetős, bitumenes zsindely fedéses épület. Az épület födéme vasbeton gerendás béléstestekkel, külső homlokzata kőporos vakolattal ellátott. Külső nyílászárói faszerkezetű ablakok, hőszigetelt üvegezéssel, jó minőségben. Fűtését és melegvíz-ellátását kombi gázkazán biztosítja radiátor hőleadókkal. A helyiségek burkolata mázas kerámia, jó műszaki állapotban. Az épületben klíma működik.
Környezet:
Az ingatlan a település központjában, az általános iskola mellett található, családi házak között.
Közlekedés:
A település és az ingatlan autóval és távolsági busszal pormentes, aszfaltozott úton közelíthető meg.
Tulajdonságok
Családi ház
Átlagos
Gázkazán
Nem adta meg a hirdető
Vedd fel a kapcsolatot a hirdetővel
+36 20 447 4
Hitelkalkulátor
Második évtől
41 572 Ft A 13. hónaptól
7,99%
Végig fix Futamidő: 20 év Banki visszahívás
Az OTP Bank munkatársai a neked megfelelő napszakban veszik fel veled a kapcsolatot. A becslés a hirdető által megadott adatokon alapul. A jelen tájékoztatás nem minősül ajánlattételnek és nem teljes körű, az egyes feltételek a hitelbírálat eredményétől függően változhatnak. Kérjük, a részletekről tájékozódj az OTP Bank fiókjaiban vagy az OTP Bank honlapján közzétett vonatkozó Üzletszabályzatokból és Hirdetményekből.
Vedd fel a kapcsolatot a hirdetővel
+36 20 447 4
Vedd fel a kapcsolatot a hirdetővel
+36 20 447 4
UI_KIT.CHARACTER_COUNTER__COMPONENT.REMAINING_SPACE__SR_ONLYUI_KIT.CHARACTER_COUNTER__COMPONENT.MAXIMUM_CHARACTER__SR_ONLY
Hasonló eladó ingatlanok Aszalón
Frissítve: 26 napja
20
10,4 M Ft 106 122 Ft/m²
Eladó családi ház, Dövény
Frissítve: 22 napja
19
9 M Ft 94 737 Ft/m²
Eladó ikerház, Taktaharkány
Frissítve: 1 hónapja
11
8,9 M Ft 94 681 Ft/m²
Eladó családi ház, Kelemér


Fedezd fel a
hasonló házakat!Még további házak Borsod-Abaúj-Zemplén megyében 9,66 M Ft körüli értékben
Tovább a hirdetésekhez Frissítve: ma
14
9,99 M Ft 124 875 Ft/m²
Eladó családi ház, Hernádcéce

Frissítve: 5 napja
10
9 M Ft 125 000 Ft/m²
Eladó családi ház, Balajt

Frissítve: 1 napja
12
10,24 M Ft 113 722 Ft/m²
Eladó családi ház, Izsófalva
