+7 fotó
Hirdetéskód: 8946320
Referenciaszám: M325482
Frissítve: 1 hónapja
Budapest X. kerület eladó családi ház 3+1 fél szobás: 190 millió Ft
190 millió Ft
1,14 millió Ft/m² *
* A m² árat a hirdető adta meg.
167 m²
409 m²
3+1 fél szoba
Leírás
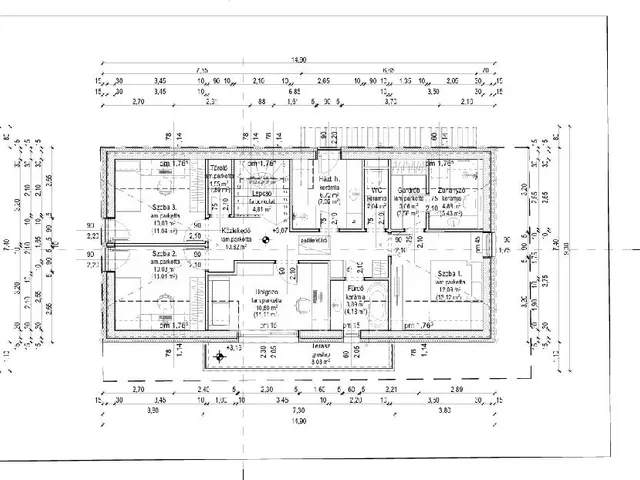
Eladó Kőbányán a 10. kerületben, új építésű , 167 nm alapterületű családi ház. A ház megfelel a családbarát kedvezményeknek és a kedvező hitel lehetőségeknek. A házhoz garázs is készül, kertkapcsolattal és terasszal. A ház teljes mértékben családbarát kialakítású, ahogy az alaprajzokból is kitűnik. Az alsó szinten amerikai konyhás, tágas terű nappalival és étkezővel a család komfort érzetének megfelelően. A felső szinten 2 gyerekszoba és külön hálószoba a családi nyugalom érdekében. Az ingatlan az egyik legmodernebb hőszivattyús rendszerrel épül a gazdaságos energia ellátás céljából. A házban a beépített bútor külön megbeszélés kérdése. A nappaliban lesz fan-coil és az emeleten mennyezet hűtés-fűtés kerül kialakításra. Padlófűtés az egész házban lesz mindenhol. A garázs temperált fűtést kap, de a belső falon lesz 5 cm szigetelés. Szellőztető rendszer csak a garázs és az előszobában kerül kiépítésre, nem kap az ingatlan külön légtechnikát. A kivitelező 2026. év végére tervezi befejezni az egész ingatlan átadását. A családi ház a valóságban úgy fog kinézni, mint a látványterveken. A részletes műszaki és egyéb feltételeket a kivitelező a helyszíni megtekintés során részletesen elmondja. Jöjjön el és szeressen bele ebbe a családbarát ingatlanba! Az OTP Ingatlanpont teljes körű ügyintézéssel áll az eladók és a vevők rendelkezésére. A kínálatunkból választott ingatlan finanszírozásához kedvezményes hitelkonstrukciókat kínálunk. További információkért keressen bizalommal!
Tulajdonságok
Családi ház
1
Új építésű
2026
Nem adta meg a hirdető
Vedd fel a kapcsolatot a hirdetővel

Dr. Lukovszki János
Budapest II. kerület Ganz utca 5-7 - OTP Ingatlanpont Iroda
Az iroda összes hirdetése +36 30 464 0
Hitelkalkulátor
Második évtől
817 673 Ft A 13. hónaptól
7,99% 8,49%
Végig fix Futamidő: 20 év Banki visszahívás
Az OTP Bank munkatársai a neked megfelelő napszakban veszik fel veled a kapcsolatot. A becslés a hirdető által megadott adatokon alapul. A jelen tájékoztatás nem minősül ajánlattételnek és nem teljes körű, az egyes feltételek a hitelbírálat eredményétől függően változhatnak. Kérjük, a részletekről tájékozódj az OTP Bank fiókjaiban vagy az OTP Bank honlapján közzétett vonatkozó Üzletszabályzatokból és Hirdetményekből.
Vedd fel a kapcsolatot a hirdetővel

Dr. Lukovszki János
Budapest II. kerület Ganz utca 5-7 - OTP Ingatlanpont Iroda
Az iroda összes hirdetése +36 30 464 0
Vedd fel a kapcsolatot a hirdetővel

Dr. Lukovszki János
Budapest II. kerület Ganz utca 5-7 - OTP Ingatlanpont Iroda
Az iroda összes hirdetése +36 30 464 0
UI_KIT.CHARACTER_COUNTER__COMPONENT.ACTUAL_CHARACTER__SR_ONLY UI_KIT.CHARACTER_COUNTER__COMPONENT.MAXIMUM_CHARACTER__SR_ONLY
Hasonló eladó ingatlanok Kőbánya városrészben
Frissítve: 1 hónapja
10
195 millió Ft 1,17 millió Ft/m²
Eladó családi ház, Budapest X. kerület, Kőbánya

Feltöltve: 23 napja
6
195 millió Ft 1,1 millió Ft/m²
Eladó ikerház, Budapest X. kerület, Kőbánya

Frissítve: ma
10
195 millió Ft 1,17 millió Ft/m²
Eladó családi ház, Budapest X. kerület


Fedezd fel a
hasonló házakat!Még további házak Budapesten 190 M Ft körüli értékben
Tovább a hirdetésekhez Frissítve: ma
7
195 millió Ft 1,17 millió Ft/m²
Eladó családi ház, Budapest X. kerület

Frissítve: ma
11
190 millió Ft 1,14 millió Ft/m²
Eladó családi ház, Budapest X. kerület

Frissítve: ma
6
195 millió Ft 1,1 millió Ft/m²
Eladó ikerház, Budapest X. kerület

