+6 fotó
Hirdetéskód: 8984268
Referenciaszám: HZ037922-5209270
Frissítve: 2 napja
Budapest X. kerület eladó családi ház 5 szobás: 190 millió Ft
190 millió Ft
1 millió Ft/m²
190 m²
400 m²
5 szoba
Eladó ház, Budapest 10. ker.
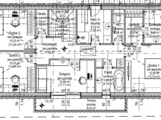
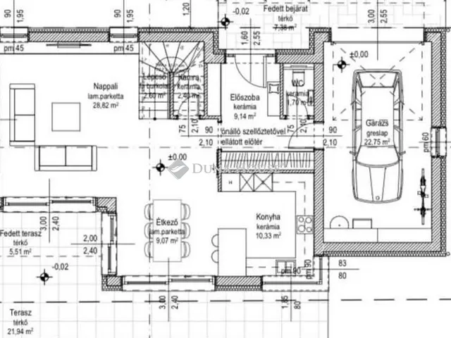
Modern, kétszintes ÖNÁLLÓ CSALÁDI HÁZ!Budapest X. kerület egyik legnyugodtabb területén, egy csendes mellékutcában, gyönyörű és minőségi családi otthon épül!Az ingatlan a mai kor műszaki elvárásai szerint kerül felépítésre. Prémium minőségű gépészet és kiváló minőségű anyagok felhasználásával.A telek adta lehetőségek a leg optimálisabban került kihasználásra, egy önálló családi ház megvalósulására.Belső terei megtervezésekor első számú szempont volt a XXI. századi modern kialakítás, a kényelmes és egyben praktikus tér elrendezés.Az ingatlanhoz tartozik egy 409 m2-es kert, amely tökéletes egy nagyobb család számára is. A kert privát és nem látni be rá, megfelelő intimitást nyújt.A csendes elhelyezkedés egyben egy remek infrastruktúrát jelent. A környéken minden megtalálható amire az embernek szüksége lehet, illetve a belváros is rendkívül gyorsan megközelíthető, autóval, és tömegközlekedéssel is.A ház helységei két szinten oszlanak meg, a hasznos alapterület 177 m2.Az otthon szíve a, közel 48,1 m2-es amerikai konyhás nappali, ami terasz kapcsolatos, ezen a szinten még előszoba, wc, háztartási helyiség kerül kialakításra.Tartozik az ingatlanhoz egy fedett garázs is, ahova bőven be lehet parkolni egy nagyméretű autóval is, illetve a holmik tárolására is tökéletes.A felső szinten további 4 db teljes értékű szoba várja új tulajdonosait, a lakók kényelmét még két db fürdőszoba szolgálja, ezenkívül gardrób, tároló és háztartási helyiség is kialakításra kerül.FELÁR ELLENÉBEN, a vállalkozó vállalja:- beépített gépesített konyabútort,- a teljes kertépítést,- a beépített gardróbszekrényeket.MŰSZAKI TARTALOM:Alapozás: statikai számítás szerint vasalással erősített beton sávalap, alapozási mélység tartószerkezeti terv szerint, várhatóan -1,40 m.Lábazat: a lábazati fal a felmenő teherhordó falazattal megegyező anyagú, mely lábazati vízszigeteléssel van ellátva.Vízszigetelés: talajnedvesség/rétegvíz és csapadék elleni szigetelés bitumen lemezzel készül. A lábazati szigetelést a felmenő falra a külső terepcsatlakozástól számított +30 cm magasságig kell felvezetni. A gyártó szerinti alkalmazástechnika szerint kell eljárni.Főfalak: 30 cm POROTHERM 30 N+F vázkerámia falazóblokk falazat ragasztva.Hőszigetelés: a lábazati falra XPS, a padlószerkezetekbe lépésálló EPS, a homlokzatra grafit EPS, a vasbeton szerkezetek külső síkjára EPS kiegészítő hőszigetelés készül. A hőszigetelések vastagsága az építész rajzok és rétegrendek szerint készítendők.Válaszfalak: 10 cm vtg. kerámia válaszfallapból, speciális ragasztóval, a gyártói előírások szerint.Áthidalások: kerámia kérgű, előregyártott vasbeton és vagy monolit vasbeton áthidalók készülnek.Koszorúk: monolit vasbeton szerkezet, külső oldalán 5 cm plusz kiegészítő.hőszigeteléssel. Födém: monolit vasbeton födém készül, statikai méretezés szerint, tetőtér felett fa fedélszék.Tető: hagyományos ácsszerkezetű magastető készül 40 fokos hajlásszöggel, 25 fokos kotyolással, dobozolt eresz kialakítással, Terrán Zenit Max Moon szürke színben cserépfedéssel.Homlokzat burkolat.: a homlokzatok RAL 9002 törtfehér vékonyvakolatot kapnak, a homlokzatokon jelölt helyeken Travertin light mészkő homlokzatburkolattal.Nyílászárók: műanyag nyílászárók fenyő színben, 3 rétegű hőszigetelő üvegezéssel és több ponton záródó biztonsági bejárati ajtóval.Burkolatok: hálószobákban laminált parketta melegburkolat, vizes helyiségeben kerámia-, és csempeburkolat készül. Kültéren a gépkocsi behajtó és járdák térkő burkolatúak.- hőszivattyús fűtés, mennyezeti fűtés, hútés.EXTRÁK:- OKOS RENDSZER,- elektromos redőnyök,- kamera és riasztó rendszer kiépítés,- videó kaputelefon,- elektromos kapu,- öntöző rendszer,- elektromos autótöltő kiépítés,- Wpc kerítés,- 3 rétegű üvegek,- rejtett világítások,- udvar világítások,- légtechnika.Teljes átláthatóság az építkezés során digitálisan, kényelmesen, biztonságosan!Az építkezés nálunk nem csak szakmai precizitásról szól, hanem valódi átláthatóságról is. A PlanRadar digitális projektkövető rendszerének köszönhetően Ön, mint leendő tulajdonos: Valós időben nyomon követheti az építkezés minden lépését akár mobilról is. Kéthetente részletes jelentést kap az aktuális állapotról, fotókkal, dokumentumokkal. A projekt végén digitálisan megkapja az összes hivatalos dokumentumot, beleértve a garanciákat, tervrajzokat, átadási jegyzőkönyveket mindezt egyetlen, biztonságos platformon.FINANSZÍROZÁS: Hitelre megvásárolható, vevőink részére díjmentes hitel közvetítés, minden magyarországi bankból. Állami támogatások felvehetőek rá!Átadás: 2026. ÉV VÉGENe hagyja ki ezt a páratlan lehetőséget! Egy ilyen prémium ingatlan ritkán kerül piacra, és most Ön előtt áll a lehetőség, hogy a város egyik legvonzóbb helyén éljen. Tökéletes választás a modern, kényelmes és biztonságos életstílust keresők számára!Várom megtisztelő hívását a hét minden napján!
Tulajdonságok
Családi ház
Új építésű
Hőszivattyú
2026
A+
Vedd fel a kapcsolatot a hirdetővel

+36 1 690 05
Hitelkalkulátor
Második évtől
817 673 Ft A 13. hónaptól
7,99% 8,49%
Végig fix Futamidő: 20 év Banki visszahívás
Az OTP Bank munkatársai a neked megfelelő napszakban veszik fel veled a kapcsolatot. A becslés a hirdető által megadott adatokon alapul. A jelen tájékoztatás nem minősül ajánlattételnek és nem teljes körű, az egyes feltételek a hitelbírálat eredményétől függően változhatnak. Kérjük, a részletekről tájékozódj az OTP Bank fiókjaiban vagy az OTP Bank honlapján közzétett vonatkozó Üzletszabályzatokból és Hirdetményekből.
Vedd fel a kapcsolatot a hirdetővel

+36 1 690 05
Vedd fel a kapcsolatot a hirdetővel

+36 1 690 05
UI_KIT.CHARACTER_COUNTER__COMPONENT.ACTUAL_CHARACTER__SR_ONLY UI_KIT.CHARACTER_COUNTER__COMPONENT.MAXIMUM_CHARACTER__SR_ONLY
Hasonló eladó ingatlanok Budapest X. kerületben
Frissítve: ma
11
190 millió Ft 1,14 millió Ft/m²
Eladó családi ház, Budapest X. kerület

Frissítve: ma
10
190 millió Ft 1,14 millió Ft/m²
Eladó családi ház, Budapest X. kerület

Frissítve: ma
10
195 millió Ft 1,17 millió Ft/m²
Eladó családi ház, Budapest X. kerület


Fedezd fel a
hasonló házakat!Még további házak Budapesten 190 M Ft körüli értékben
Tovább a hirdetésekhez Frissítve: ma
9
190 millió Ft 1 millió Ft/m²
Eladó családi ház, Budapest X. kerület

Frissítve: ma
7
195 millió Ft 1,17 millió Ft/m²
Eladó családi ház, Budapest X. kerület

Frissítve: 1 napja
6
195 millió Ft 1,1 millió Ft/m²
Eladó ikerház, Budapest X. kerület

