+17 fotó
Hirdetéskód: 8801822
Referenciaszám: M298131-5093095
Feltöltve: 1 napja
Budapest XXII. kerület eladó családi ház 9+2 fél szobás: 163 millió Ft
163 millió Ft
673 554 Ft/m²
242 m²
728 m²
9+2 fél szoba
Eladó Ház, Budapest 22. ker.
A XXII. kerület legkedveltebb részén, DUNATELEPEN három lakásos családiház eladó.
Az utca végén Duna part, Kis-Háros sziget, természetvédelmi terület, lovarda, kajak-kenu egyesület és SUP kölcsönzési lehetőség!
Eladásra kínálok egy nettó 242m2-es két szintes családi házat, melyben jelenleg három különálló lakás van kialakítva. A 724m2-es telken a házon felül fedett sütögető hely, tárolók, és mászóka is található.
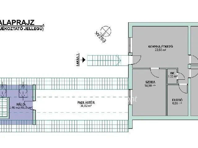
Az épületen belül a három lakás a mellékelt alaprajz szerint helyezkedik el. Az 1. lakás 122m2, a 2. lakás, ami két szintes nettó 35m2-es, a 3. lakás pedig 86m2-es.
A fűtést automata váltókapcsolóval ellátott kondenzációs-, vagy vegyestüzelésű kazán biztosítja.
Az épület szigetelt, 2005-ben teljeskörűen felújították, azóta is folyamatosan karbantartják.
A parkolás a telken belül, és az utcán is lehetséges. Az utca zsákutca, átmenő forgalomtól mentes.
Lke-2/D/1-es övezeti besorolás alapján a telek 20%-os beépíthetőségi, 50% zöldterületi mutató, és 6 m-es építménymagassági maximummal rendelkezik.
Dunatelep lakó pihenő övezet, a lakók összetartóak, utcabálokat szerveznek, saját facebook csoportban segítik egymást. A Covid óta ez a legkedveltebb része a kerületnek.
Az ingatlan közvetlen közelében helyezkedik el a Dunapart ABC, mely élelmiszer kiskereskedés. 800m-re pedig két élelmiszer áruházlánci egység is elérhető (ALDI, LIDL). Bevásárló központ két kilométerre található, ahol a közműszolgáltatók, telefontársaságok kirendeltségein kívül posta, gyógyszertár, fodrász, fitnesz-terem, benzinkút is megtalálható (CAMPONA Bevásárló Központ)
Háziorvosi rendelő, bölcsőde, óvoda, iskola, 1 km távolságra.
A közelben éjszakai és nappali BKV járatok, agglomeráció felé közlekedő távolsági buszok megállói, és vasútállomás is található, a part mentén kerékpárút vezet, melyen szintén elérhetjük a belvárost.
Ne szalassza el ezt a lehetőséget.
Igény szerint hitelügyintézést, ügyvédi közreműködést biztosítunk, és segítséget nyújtunk az adásvétel folyamatának intézéséhez.
Amennyiben érdekli az ingatlan, vagy további kérdései vannak, hívjon telefonon.
Referencia szám: M298131
Tulajdonságok
Családi ház
Jó állapotú
Gázkazán
1970
Nem adta meg a hirdető
Vedd fel a kapcsolatot a hirdetővel
Zatykó Krisztina OTPip - Budapest XI. kerület Bartók Béla út 62 - OTP Ingatlanpont Iroda Az iroda összes hirdetése
+36 70 237 2
Hitelkalkulátor
Második évtől
701 478 Ft A 13. hónaptól
7,99%
Végig fix Futamidő: 20 év Banki visszahívás
Az OTP Bank munkatársai a neked megfelelő napszakban veszik fel veled a kapcsolatot. A becslés a hirdető által megadott adatokon alapul. A jelen tájékoztatás nem minősül ajánlattételnek és nem teljes körű, az egyes feltételek a hitelbírálat eredményétől függően változhatnak. Kérjük, a részletekről tájékozódj az OTP Bank fiókjaiban vagy az OTP Bank honlapján közzétett vonatkozó Üzletszabályzatokból és Hirdetményekből.
Vedd fel a kapcsolatot a hirdetővel
Zatykó Krisztina OTPip - Budapest XI. kerület Bartók Béla út 62 - OTP Ingatlanpont Iroda Az iroda összes hirdetése
+36 70 237 2
Vedd fel a kapcsolatot a hirdetővel
Zatykó Krisztina OTPip - Budapest XI. kerület Bartók Béla út 62 - OTP Ingatlanpont Iroda Az iroda összes hirdetése
+36 70 237 2
UI_KIT.CHARACTER_COUNTER__COMPONENT.REMAINING_SPACE__SR_ONLYUI_KIT.CHARACTER_COUNTER__COMPONENT.MAXIMUM_CHARACTER__SR_ONLY
Hasonló eladó ingatlanok Nagytétény-Dunatelep városrészben
Frissítve: 1 napja
20
163 M Ft 673 554 Ft/m²
Eladó családi ház, Budapest XXII. kerület, Nagytétény-Dunatelep

Frissítve: 16 napja
20
164,6 M Ft 929 944 Ft/m²
Eladó családi ház, Budapest XXII. kerület, Nagytétény

Frissítve: 28 napja
20
150 M Ft 937 500 Ft/m²
Eladó ikerház, Budapest XXII. kerület, Budafok

Fedezd fel a
hasonló házakat!Még további házak Budapest XXII. kerületben 163 M Ft körüli értékben
Tovább a hirdetésekhez Frissítve: 1 napja
20
175 M Ft 945 946 Ft/m²
Eladó ikerház, Budapest XXII. kerület, Budafok

Frissítve: 2 napja
14
178 M Ft 613 793 Ft/m²
Eladó családi ház, Budapest XXII. kerület, Budafok

Frissítve: 1 napja
19
149,9 M Ft 727 670 Ft/m²
Eladó ikerház, Budapest XXII. kerület, Nagytétény


Töltsd fel hirdetésed ingyenesen!
Egyszerű