

+7 fotó
Hirdetéskód: 8456669
Referenciaszám: U0043177
Frissítve: 15 napja
Dány eladó családi ház 6+1 fél szobás: 94,9 millió Ft
94,9 millió Ft
465 196 Ft/m² *
* A m² árat a hirdető adta meg.
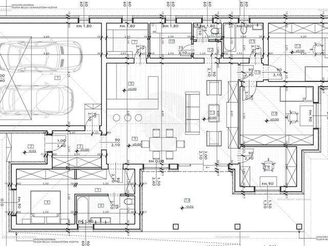
204 m²
906 m²
6+1 fél szoba
Eladó újépítésű családi ház Dányban
Egy modern, világos és prémium kivitelezésű ingatlant keresel a felkapott környéken? Ezt most neked álmodtuk meg! Az új építésű, panorámás ingatlanunk egy csendes, biztonságos és kiválóan ellátott környéken épül, ahol minden megtalálható a mindennapi élethez szükséges dolgoktól kezdve a kikapcsolódási lehetőségekig.
Nagy referenciával* rendelkező helyi vállalkozó készíti, aki minden kérdés és kérés esetén rendelkezésünkre áll. Az építkezés szerződés után azonnal elkezdődik, és 6 hónapon belül kulcsrakész lesz.
Az ingatlan állapota új építésű, így minden részletét az Ön igényeinek megfelelően alakítottuk ki. Az építkezés már elkezdődött, jelenleg az alapozás utáni állapot látható.
Műszaki adatok:
-Alapozás: Monolit vasbeton sávalap (C16/20), lépcsősen kialakítva, szélessége 50 cm. Talpkoszorú: 25x30 cm, 3+3 db Ø12 mm fővassal, Ø8/20 kengyelezéssel.
-Lábazati falazat: 30 cm vastag ZSK-30 zsalukő, soronként 2 db Ø12 mm fővassal.
-Koszorú: 25 cm magas monolit vasbeton (C20/25), 4 db Ø12 mm fővassal, Ø8/20 kengyelezéssel, 5 cm hőszigeteléssel.
-Felmenő falazat: 30 cm vastag Ytong Classic 30 pórusbeton tégla.
-Nyílásáthidalás: 25 cm magas monolit vasbeton
-Födémszerkezet: I. osztályú fenyő fafödém, sűrített gerendázattal, acél vagy fakötéses rögzítéssel.
-Tetőszerkezet: Kétszékes fa fedélszék, állások távolsága 70 cm.
-Héjazat: Kerámia cserépfedés ( választható szín)
-Hőszigetelés: 30 cm Austrotherm padlásfödém-szigetelés, 12 cm Austrotherm NT-100 lépésálló szigetelés.
-Nyílászárók: Egyedi fehér műanyag külső nyílászárók (U=1,1 W/m²K), tripla üvegezésű 6 légkamrás, aeroco szellőzővel, belső fa ajtók.
-Homlokzat: Austrotherm AT-H80 hőszigetelés, weber vékonyvakolat (bordó és antracit színek).
-Bádogos szerkezetek: Horganyzott ereszcsatorna
-Burkolatok: Greslap, padlóburkoló lap ( költségkereten belül választható), laminált melegburkolat
-Belső festés: Fehér diszperzit festés, külső fa szerkezetek barnára festve.
-Járda: 6 cm térkő, 10 cm kavicságyon, C10 beton szegéllyel, vízelvezetéssel.
-Gépészet: kondenzációs gázkazán, split klímás fűtés-hűtés vagy hőszivattyú padlófűtéssel.
-Elektromos hálózat: 220V légvezeték, főelosztó kismegszakítókkal, tűzeseti lekapcsolással, H-tarifás óra opció
A burkolatok és a beltéri ajtók a vállalkozó által biztosított összeghatárig választhatóak:
• Hidegburkolat: 5.000.-/m2
• Melegburkolat: 5.000.-/m2
• Beltéri ajtók: 60.000.-/db
• Fürdőkád: 50.000.-
• Csaptelepek: 15000.-/db
A környék előnyeit tekintve, természetvédelmi területek és erdők is találhatóak a közelben, így a természet szerelmesei számára is ideális helyszín lehet az ingatlan. Emellett a város központjában üzletek, szolgáltatások és étterem is található, így a mindennapi élethez szükséges dolgok is könnyen elérhetőek. Budapest 35-40p alatt elérhető.
Ha kérdése merülne fel az ingatlanról, vagy érdeklődne további részletek iránt, bátran keressen minket.
AZ INGATLAN CSOK+ KÉPES!
Várható befejezés 2025. ősz
Intor Ingatlan – Otthont biztonságban!
Irodánk rendelkezésére áll az értékesítés első lépésétől, egészen az utolsóig. Amennyiben valamelyik ingatlanunkat jelenlegi ingatlanja értékesítése után kívánja megvásárolni, vagy egy megbízható irodával kívánna együttműködni, amely teljeskörű ügyintézést biztosít, megfizethető áron, forduljon hozzánk bizalommal!
Tulajdonságok
Családi ház
Új építésű
Geotermikus
2025
Nem adta meg a hirdető
Vedd fel a kapcsolatot a hirdetővel
+36 70 412 5
Hitelkalkulátor
Második évtől
408 406 Ft A 13. hónaptól
7,99% 8,49%
Végig fix Futamidő: 20 év Banki visszahívás
Az OTP Bank munkatársai a neked megfelelő napszakban veszik fel veled a kapcsolatot. A becslés a hirdető által megadott adatokon alapul. A jelen tájékoztatás nem minősül ajánlattételnek és nem teljes körű, az egyes feltételek a hitelbírálat eredményétől függően változhatnak. Kérjük, a részletekről tájékozódj az OTP Bank fiókjaiban vagy az OTP Bank honlapján közzétett vonatkozó Üzletszabályzatokból és Hirdetményekből.
Vedd fel a kapcsolatot a hirdetővel
+36 70 412 5
Vedd fel a kapcsolatot a hirdetővel
+36 70 412 5
UI_KIT.CHARACTER_COUNTER__COMPONENT.REMAINING_SPACE__SR_ONLYUI_KIT.CHARACTER_COUNTER__COMPONENT.MAXIMUM_CHARACTER__SR_ONLY
Hasonló eladó ingatlanok Dányon
Frissítve: 2 hónapja

16
94,9 M Ft 316 333 Ft/m²
Eladó családi ház, Dunaharaszti
Frissítve: 6 napja

10
89 M Ft
Eladó családi ház, Alsónémedi, Háromszintes ház

Frissítve: 12 napja

11
97,09 M Ft 753 122 Ft/m²
Eladó ikerház, Vác


Fedezd fel a
hasonló házakat!Még további házak Pest megyében 94,9 M Ft körüli értékben
Tovább a hirdetésekhez Frissítve: 12 napja

20
Rezsi nélküli, tégla építésű, prémium családi házak, akár 6 hónap alatt - Ár-garancia / Kötbér-garancia / Előfinanszírozás
89,1 M Ft 515 000 Ft/m²
Eladó családi ház, Cegléd

Frissítve: 8 napja

5
95 M Ft 1 187 500 Ft/m²
Eladó ikerház, Érd

Frissítve: 7 napja

9
89,1 M Ft 900 000 Ft/m²
Eladó ikerház, Kiskunlacháza

Töltsd fel hirdetésed ingyenesen!
Egyszerű