+17 fotó
Zenga
Premier
Hirdetéskód: 8921416
Referenciaszám: M324480
Feltöltve: ma
Felgyő eladó családi ház 4 szobás: 41,9 millió Ft
41,9 millió Ft
364 348 Ft/m² *
* A m² árat a hirdető adta meg.
115 m²
1019 m²
4 szoba

Friss hirdetések, amiket nem találsz meg más ingatlankereső portálon.
Fedezd fel elsőként a Zenga Premier címkés eladó ingatlanokat! További részletek A Duna House, OTP Ingatlanpont, Otthon Centrum és további hálózatok új, kizárólagos hirdetéseinek nagy részét a zenga.hu és koltozzbe.hu ingatlankeresőn láthatod legelőször, és a feltöltéstől két hétig nem érhetők el más ingatlankeresőn!
Leírás
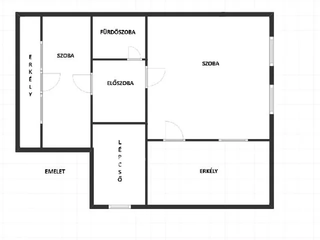
*** CSAK AZ OTP INGATLANPONT KÍNÁLATÁBAN! *** Eladó egy teljesen felújított, 115 nm-es ingatlan Felgyő egyik legcsendesebb utcájában, ideális otthon vagy befektetésnek! Ez a modern és kényelmes lakás három hálószobával, egy amerikai konyhás nappalival, egy elegáns fürdőszobával és WC-vel várja új tulajdonosát. A felújítás során minden részletre odafigyeltek: új burkolatok minden helyiségben, korszerűsített villany-, víz- és szennyvíz hálózat, műanyag nyílászárók szúnyoghálóval és redőnnyel ellátva, így biztosítva a nyugodt és energiatakarékos működést. A fűtés korszerű, turbó-gázkazánnal lett felszerelve, amely nemcsak a meleget, hanem a meleg vizet is biztosítja. A hőleadás padlófűtéssel és új radiátorokkal történik. A kellemes hőmérsékletet, 4 db 3,5 kw-os klíma biztosítja. A fürdőszoba és a WC frissen felújított, modern kialakítású, hogy otthonod még kényelmesebbé váljon. A konyha egyedi, asztalos által készített, beépített gépekkel ellátott konyhabútorral került kialakításra. Az ingatlanhoz tartozó telek alapterülete 1019 nm, melyen egy 20 nm-es zárható garázs, egy praktikus kamra és egy ól is helyet kapott, ideális tárolási lehetőség vagy hobbihelyiség számára. Ne hagyja ki ezt a kivételes lehetőséget! Keressen minket még ma, és legyen Öné ez a modern, jól karbantartott otthon. Legújabb szolgáltatásként ajánlom minden kedves ügyfelem részére az OTP Bank által közvetített Babaváró, CSOK PLUSZ, Otthon Start Hitelprogram vagy egyéb kölcsönök intézését. Számos konstrukció közül választhatnak. Irodáink Szentes, Petőfi utca 12. A buszmegálló felől, és Csongrád, Fő utca 54. szám alatt várja a személyes érdeklődőket. ***VÁLASSZUK KI EGYÜTT AZ ÖNNEK LEGMEGFELELŐBB AJÁNLATOT! BANKI SORBAN ÁLLÁS NÉLKÜL! Az adásvételi szerződés megkötéséhez igény szerint megbízható ügyvédi közreműködést biztosítunk, és segítséget nyújtunk az adásvételhez kapcsolódó ügyek intézésénél.
Tulajdonságok
Családi ház
2
Átlagos
Házközponti
1983
Nem adta meg a hirdető
Vedd fel a kapcsolatot a hirdetővel
+36 30 375 5
Hitelkalkulátor
Második évtől
180 318 Ft A 13. hónaptól
7,99%
Végig fix Futamidő: 20 év Banki visszahívás
Az OTP Bank munkatársai a neked megfelelő napszakban veszik fel veled a kapcsolatot. A becslés a hirdető által megadott adatokon alapul. A jelen tájékoztatás nem minősül ajánlattételnek és nem teljes körű, az egyes feltételek a hitelbírálat eredményétől függően változhatnak. Kérjük, a részletekről tájékozódj az OTP Bank fiókjaiban vagy az OTP Bank honlapján közzétett vonatkozó Üzletszabályzatokból és Hirdetményekből.
Vedd fel a kapcsolatot a hirdetővel
+36 30 375 5
Vedd fel a kapcsolatot a hirdetővel
+36 30 375 5
UI_KIT.CHARACTER_COUNTER__COMPONENT.ACTUAL_CHARACTER__SR_ONLY UI_KIT.CHARACTER_COUNTER__COMPONENT.MAXIMUM_CHARACTER__SR_ONLY
Hasonló eladó ingatlanok Felgyőn
Frissítve: 19 napja
7
38,9 M Ft 235 757 Ft/m²
Eladó családi ház, Szeged
Frissítve: 1 napja
20
45 M Ft 692 308 Ft/m²
Eladó családi ház, Tiszasziget

Frissítve: 17 napja
14
39,9 M Ft 463 953 Ft/m²
Eladó családi ház, Földeák, Dózsa György utca


Fedezd fel a
hasonló házakat!Még további házak Csongrád megyében 41,9 M Ft körüli értékben
Tovább a hirdetésekhez Feltöltve: 10 napja
20
39,9 M Ft 798 000 Ft/m²
Eladó családi ház, Domaszék
Frissítve: 19 napja
14
42 M Ft 777 778 Ft/m²
Eladó ikerház, Szeged

Frissítve: 11 napja
18
46 M Ft 1 022 222 Ft/m²
Eladó családi ház, Szeged


