+1 fotó
Hirdetéskód: 8858764
Referenciaszám: 679
Frissítve: 18 napja
Győr eladó családi ház 3 szobás: 44,99 millió Ft
44,99 millió Ft
391,2 ezer Ft/m² *
* A m² árat a hirdető adta meg.
115 m²
690 m²
3 szoba
Eladó Ház, Győr 44.990.000 Ft
Hivatkozási szám: 679
Alap, amiből érték lesz – családi ház Győrszentivánon
Alakítsa saját ízlésének megfelelő othonná!
Az átalakítás és felújítás tervei rendelkezésre állnak.
Igény esetén - külön megegyezés keretében - vállaljuk a teljes körű felújítást.
A Klasszik Ingatlaniroda eladásra kínálja Győrszentiván központi, mégis nyugodt részén, mindenhez közel ezt a felújítandó önálló családi házat.
Az ingatlan teljes körű felújítást igényel, ugyanakkor ez kiváló lehetőséget biztosít arra, hogy az új tulajdonos saját ízlésére szabva, korszerű műszaki tartalommal alakítsa ki jövőbeli otthonát.
A jelenleg elérhető állami támogatások, pályázatok (Otthonfelújítási Program, Energetikai Korszerűsítés, Kormányzati Energiahatékonysági Támogatás ,Otthoni Energiatároló Program) segítségével a modernizálás költséghatékonyan megvalósítható.
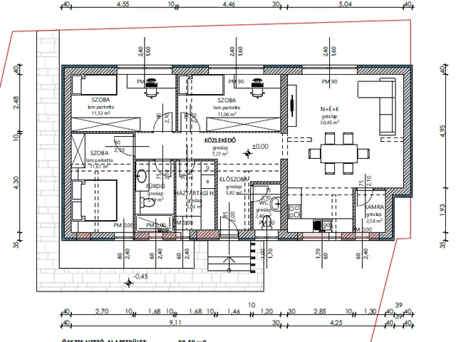
A br 115 m²-es ingatlan az 1950-es években épült tégla falazattal, fafödémmel, cserépfedéssel.
A telek mérete ideális: 680 m². Nem kicsi, nem nagy, éppen megfelelő, kiválóan alkalmas kikapcsolódásra, családi-barái összejövetelek megrendezésére, egy kis zöldség- gyümölcs termesztésére, de nem jelent megterhelő, soha véget nem érő munkát az itt lakók számára.
MŰSZAKI ADATOK:
- víz, villany bevezetve
- villamos hálózat bővítve (3×16 A)
- ipari áram rendelkezésre áll
- H-tarifa előkészítve
- jelenleg fűtésrendszer nincs kiépítve (korábban kályhával fűtöttek)
A ház jelenleg 2 szobás, alaprajza változtatható, könnyedén kialakítható a közkedvelt amerikai konyha-étkező-nappali + 3 hálószobás elrendezés.
Győrszentiván kiváló infrastruktúrával rendelkezik: óvoda, iskola, boltok, szolgáltatások, tömegközlekedés mind könnyen elérhetők, miközben megmarad a családbarát, vidéki hangulat. A belváros, az Audi, az Ipari park gyorsan megközelíthető.
AJÁNLJUK mindazoknak,
- akik saját elképzeléseik szerint szeretnének otthont teremteni,
- akik értéket látnak egy jól elhelyezkedő, felújítható ingatlanban,
- fiatal pároknak, családoknak vagy befektetőknek, akik hosszú távon gondolkodnak.
Irányár 44 990 000 Ft
Az ingatlan megvásárlásához irodánk díjmentesen többféle pénzügyi lehetőséget kínál. Igény esetén – megfelelő ügyvédi háttérrel – vállaljuk az adásvétel teljes körű lebonyolítását, valamint az energetikai tanúsítvány gyors elkészítését.
Keressen bizalommal – akár hétvégén is!
Tel: +36 20 538 1936
Email: info@klasszikingatlan.hu
Tulajdonságok
Családi ház
1
Felújítandó
Egyéb
Nem adta meg a hirdető
Vedd fel a kapcsolatot a hirdetővel
Klasszik Ingatlaniroda Az iroda összes hirdetése
+36 20 538 1
Hitelkalkulátor
Második évtől
193 616 Ft A 13. hónaptól
7,99%
Végig fix Futamidő: 20 év Banki visszahívás
Az OTP Bank munkatársai a neked megfelelő napszakban veszik fel veled a kapcsolatot. A becslés a hirdető által megadott adatokon alapul. A jelen tájékoztatás nem minősül ajánlattételnek és nem teljes körű, az egyes feltételek a hitelbírálat eredményétől függően változhatnak. Kérjük, a részletekről tájékozódj az OTP Bank fiókjaiban vagy az OTP Bank honlapján közzétett vonatkozó Üzletszabályzatokból és Hirdetményekből.
Vedd fel a kapcsolatot a hirdetővel
Klasszik Ingatlaniroda Az iroda összes hirdetése
+36 20 538 1
Vedd fel a kapcsolatot a hirdetővel
Klasszik Ingatlaniroda Az iroda összes hirdetése
+36 20 538 1
UI_KIT.CHARACTER_COUNTER__COMPONENT.ACTUAL_CHARACTER__SR_ONLY UI_KIT.CHARACTER_COUNTER__COMPONENT.MAXIMUM_CHARACTER__SR_ONLY
Hasonló eladó ingatlanok Győrszentiván városrészben
Frissítve: 4 napja
7
47 millió Ft 783,3 ezer Ft/m²
Eladó családi ház, Győr, Győrszentiván

Feltöltve: 3 hónapja
1
44,8 millió Ft 560 ezer Ft/m²
Eladó családi ház, Győr, Győrszentiván
Frissítve: 3 napja
20
44,9 millió Ft 1,12 millió Ft/m²
Eladó családi ház, Győr, Győrszentiván


Fedezd fel a
hasonló házakat!Még további házak Győrben 44,99 M Ft körüli értékben
Tovább a hirdetésekhez Frissítve: 18 napja
20
46 millió Ft 107 ezer Ft/m²
Eladó családi ház, Győr, Győrszentiván
Frissítve: 18 napja
20
45,5 millió Ft 413,6 ezer Ft/m²
Eladó családi ház, Győr, Győrszentiván

Frissítve: 18 napja
20
44,9 millió Ft 641,4 ezer Ft/m²
Eladó családi ház, Győr, Győrszentiván

