+4 fotó
Hirdetéskód: 8824757
Referenciaszám: 5070
Frissítve: ma
Gyúró eladó családi ház 4 szobás: 88,8 millió Ft
88,8 millió Ft
944 681 Ft/m²
94 m²
575 m²
4 szoba
Kód: 5070 Új építésű ház, N+3 szoba, 2 fürdőszoba, teraszok, hőszivattyús fűtés
Hivatkozzon erre, kód: 5070N
AKCIÓ! 89.9mFt helyett most 88.8mFt!
A SZENT LÁSZLÓ PATAK VÖLGYÉBEN, IGAZI TERMÉSZETKÖZELI KÖRNYEZETBEN GYÚRÓN KÍNÁLUNK ELADÁSRA ÚJ ÉPÍTÉSŰ CSALÁDI HÁZAT, AZOK SZÁMÁRA AKIK SZERETIK A CSENDET, NYUGALMAT, ZÖLD ÖVEZETET!
- ÚJ ÉPÍTÉSŰ ÖNÁLLÓ HÁZ
- TÁRSASHÁZI ALAPÍTÓ OKIRAT, ÖNÁLLÓ ALBETÉT
- NAPPALI + 3 SZOBA + 2 FÜRDŐSZOBA + TERASZOK + SAJÁT KERT
- IGÉNY SZERINTI BEFEJEZÉS
Budapesttől 30km-re Gyúrón csendes, családi házas övezetben kb. 575m2-es saját telekkel rendelkező nappali + 3 szobás, dupla komfortos összesen 94.1m2-es (teraszok felével), új építésű ikerház jellegű (2-es épület) családi ház igény szerinti befejezéssel leköthető!
Teljesen önálló házként funkcionál, nincs közös lakófal, az ingatlanok egy fedett autóbeállónál érnek össze!
Várható átadás: 2026. október vége!
Megbízható beruházó, referencia ingatlanok megtekinthetők!
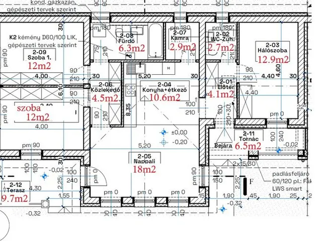
Az ingatlan felosztása a következő (nettó 86m2 lakótér + teraszok): előtér (4.1m2), wc - zuhanyzó (2.7m2), konyha-étkező (10.6m2), nappali (18m2), közlekedő (4.5m2), kamra (2.9m2), fürdőszoba + wc (6.3m2), 3 szoba (12.9m2, 12m2, 12m2), 2 terasz (9.7m2, 6.5m2).
Szerkezeti leírás: Beton alap. Tégla főfalak + 15cm dryvit szigetelés. Tégla válaszfalak. A külső nyílászárók műanyag szerkezetűek, fokozott hőszigetelésű üvegezéssel ellátva, redőnytok előkészítéssel (redőny, elektronika és szúnyogháló nincs az árban). A belső nyílászárók dekorfóliás ajtók. Cserép fedésű tető. Az igény szerinti befejezésnek köszönhetően a hideg burkolatok 7000 Ft / m2, míg a meleg burkolatok 4000 Ft / m2 árig kiválaszthatók. A beltéri ajtók kilinccsel együtt 60.000 Ft / db. áron kérhetők.
Fűtés: Az ingatlan fűtését hőszivattyús rendszer látja el, minden helyiségben padlófűtésen keresztül.
Parkolás: saját telken belül fedetlen - felszíni beálló áll rendelkezésre.
Megközelíthetőség és infrastruktúra jó! A kis településen található óvoda, iskola, bolt, egészségház és posta is, valamint a horgászat szerelmeseinek a csodálatos kis Gyúrói horgásztó. Az M7-es autópálya csupán 6km-re található. A településen buszjárat közlekedik, de Martonvásárra eljutva a vonattal hamar elérhető a Kelenföldi pályaudvar is.
További hasonló ingatlanok találhatók még a kínálatunkban!
Szüksége van hitelre? SEGÍTÜNK!
Bankfüggetlen hitel tanácsadónk díjmentesen áll az Ön rendelkezésére! Keressen bizalommal!
A hirdetésben szereplő adatok, információk, képek, alaprajzok stb... tájékoztató jellegűek! Irodánk az esetleges elírásokért felelősséget nem tud vállalni!
Tájékoztatjuk a Tisztelt Érdeklődőket, hogy az ingatlan hirdetésében szereplő telefonszám felhívásával Önök hozzájárulnak személyes adataik (név, telefonszám), a hirdetést feladó -Otthonplusz.hu Kft. - által a bizalmas kezeléshez és nyilvántartáshoz
Tulajdonságok
Családi ház
1
Új építésű
Hőszivattyú
2026
Nem adta meg a hirdető
Vedd fel a kapcsolatot a hirdetővel
Otthon Plusz Ingatlaniroda Az iroda összes hirdetése
+36 20 582 9
Hitelkalkulátor
Második évtől
382 155 Ft A 13. hónaptól
7,99% 8,49%
Végig fix Futamidő: 20 év Banki visszahívás
Az OTP Bank munkatársai a neked megfelelő napszakban veszik fel veled a kapcsolatot. A becslés a hirdető által megadott adatokon alapul. A jelen tájékoztatás nem minősül ajánlattételnek és nem teljes körű, az egyes feltételek a hitelbírálat eredményétől függően változhatnak. Kérjük, a részletekről tájékozódj az OTP Bank fiókjaiban vagy az OTP Bank honlapján közzétett vonatkozó Üzletszabályzatokból és Hirdetményekből.
Vedd fel a kapcsolatot a hirdetővel
Otthon Plusz Ingatlaniroda Az iroda összes hirdetése
+36 20 582 9
Vedd fel a kapcsolatot a hirdetővel
Otthon Plusz Ingatlaniroda Az iroda összes hirdetése
+36 20 582 9
UI_KIT.CHARACTER_COUNTER__COMPONENT.REMAINING_SPACE__SR_ONLYUI_KIT.CHARACTER_COUNTER__COMPONENT.MAXIMUM_CHARACTER__SR_ONLY
Hasonló eladó ingatlanok Gyúrón
Frissítve: 10 hónapja
1
91 M Ft 505 556 Ft/m²
Eladó sorház, Székesfehérvár
Frissítve: 9 napja
16
82,99 M Ft 761 376 Ft/m²
Eladó családi ház, Mány, János hegy utca

Frissítve: 13 napja
20
250 000 Euro
96,25 M Ft 788 934 Ft/m²
Eladó családi ház, Sukoró


Fedezd fel a
hasonló házakat!Még további házak Fejér megyében 88,8 M Ft körüli értékben
Tovább a hirdetésekhez Frissítve: 22 napja
20
95 M Ft 1 032 609 Ft/m²
Eladó családi ház, Fehérvárcsurgó

Frissítve: 9 napja
20
84,9 M Ft 943 333 Ft/m²
Eladó családi ház, Kápolnásnyék

Frissítve: 22 napja
4
89 M Ft 1 000 000 Ft/m²
Eladó családi ház, Velence

