

+18 fotó
Hirdetéskód: 8747080
Referenciaszám: M314808-5061602
Frissítve: ma
Koroncó eladó családi ház 2 szobás: 39 millió Ft
39 millió Ft
650 000 Ft/m²
60 m²
1195 m²
2 szoba
Eladó Ház, Koroncó
Felújításra váró családi ház jó méretű telekkel Koroncón, csak 15 km Győrtől!
Lehetőségek háza Koroncón!
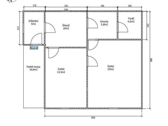
Eladásra kínálunk egy felújításra szoruló, 60 nm2-es, 2 szobás családi házat, csendes, rendezett utcában.
A 1195 nm-es, tágas telek rengeteg lehetőséget kínál: bővítés, új építés, csak a képzelet szab határt!
A főépület mellett egy különálló, 36 nm-es kis ház is található, amely felújítva vendégháznak, műhelynek vagy akár kiadható lakrésznek is kiváló lehet.
Főbb adatok:
Nettó alapterület: 60 nm, Szobák száma: 2, Telekterület: 1195 nm, Építés éve: 1960, Fűtés: gázkonvektor, Kert, fúrt kút, melléképület
Kiváló választás befektetőknek, fiatal pároknak, akik egy nyugodt, falusias környezetben szeretné megteremteni álmai otthonát, Győr közelségében!
Ne hagyd ki ezt a ritka lehetőséget, olcsó ház, megfelelő méretű telek, rengeteg potenciál!
Referenciaszám: M314808
Amennyiben felkeltette a hirdetés az érdeklődését, kérem hívjon bizalommal!
Tulajdonságok
Családi ház
Felújítandó
Gáz (konvektor)
1960
Nem adta meg a hirdető
Vedd fel a kapcsolatot a hirdetővel
+36 70 250 0
Hitelkalkulátor
Második évtől
167 838 Ft A 13. hónaptól
7,99%
Végig fix Futamidő: 20 év Banki visszahívás
Az OTP Bank munkatársai a neked megfelelő napszakban veszik fel veled a kapcsolatot. A becslés a hirdető által megadott adatokon alapul. A jelen tájékoztatás nem minősül ajánlattételnek és nem teljes körű, az egyes feltételek a hitelbírálat eredményétől függően változhatnak. Kérjük, a részletekről tájékozódj az OTP Bank fiókjaiban vagy az OTP Bank honlapján közzétett vonatkozó Üzletszabályzatokból és Hirdetményekből.
Vedd fel a kapcsolatot a hirdetővel
+36 70 250 0
Vedd fel a kapcsolatot a hirdetővel
+36 70 250 0
UI_KIT.CHARACTER_COUNTER__COMPONENT.REMAINING_SPACE__SR_ONLYUI_KIT.CHARACTER_COUNTER__COMPONENT.MAXIMUM_CHARACTER__SR_ONLY
Hasonló eladó ingatlanok Koroncón
Frissítve: 28 napja

20
36 M Ft 450 000 Ft/m²
Eladó családi ház, Koroncó

Frissítve: 7 napja

20
39 M Ft 650 000 Ft/m²
Eladó családi ház, Koroncó

Feltöltve: 8 napja

20
39 M Ft 650 000 Ft/m²
Eladó családi ház, Koroncó


Fedezd fel a
hasonló házakat!Még további házak Győr-Moson-Sopron megyében 39 M Ft körüli értékben
Tovább a hirdetésekhez Frissítve: ma

20
39 M Ft 650 000 Ft/m²
Eladó családi ház, Koroncó

Frissítve: 28 napja

6
36 M Ft 514 286 Ft/m²
Eladó családi ház, Mosonmagyaróvár, Erzsébet tér

Frissítve: 1 éve

3
39,99 M Ft 444 333 Ft/m²
Eladó családi ház, Bősárkány

Töltsd fel hirdetésed ingyenesen!
Egyszerű