+14 fotó
Hirdetéskód: 8959614
Referenciaszám: M323194-5194345
Frissítve: 1 napja
Lepsény eladó családi ház 2 szobás: 72 millió Ft
72 millió Ft
857 143 Ft/m²
84 m²
2130 m²
2 szoba
Eladó Ház, Lepsény
Eladó Fejér vármegyében, Lepsény központjában egy 82 nm-es, napfényes, felújított családi ház egy 2130 nm-es tágas telken.
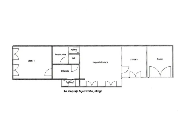
A ház praktikus elrendezésű: 2 külön nyíló szoba, tágas nappali-konyha és fürdőszoba. A nagy ablakoknak köszönhetően minden helyiség világos, barátságos hangulatú.
A műszaki tartalom kiemelkedő: új tető és szigetelés, napelemes rendszer az alacsony rezsiért, valamint többféle fűtési lehetőség. A telek számos lehetőséget rejt: kertészkedés, önellátó gazdálkodás, pihenőkert vagy akár további bővítés.
Lepsény jó közlekedésű település: az M7-es autópálya és a 7-es főút révén könnyen elérhető Székesfehérvár, Siófok és Budapest (kb. 1 óra). A környéken óvoda, iskola, boltok és orvosi ellátás biztosítja a kényelmes mindennapokat.
Ajánlott: családoknak nagy kerttel, nyugalmat keresőknek, gazdálkodásban gondolkodóknak, illetve befektetőknek.
Ne hagyja ki! További információért és megtekintésért keressen bizalommal!
Referenciaszám: M323194
Az OTP Bankcsoport teljeskörű ügyintézéssel áll az eladók és a vevők rendelkezésére! A kínálatunkból választott ingatlan finanszírozásához kedvezményes hitelkonstrukciókat kínálunk. Az adásvételi szerződés megkötéséhez igény szerint megbízható ügyvédi közreműködést biztosítunk és segítséget nyújtunk az adásvételhez kapcsolódó ügyek intézéséhez.
Tulajdonságok
Családi ház
Felújított
Elektromos
1960
Nem adta meg a hirdető
Vedd fel a kapcsolatot a hirdetővel
Gombos Zita OTPip - Szigetszentmiklós Tököli út 19.B - OTP Ingatlanpont Iroda Az iroda összes hirdetése
+36 20 534 7
Hitelkalkulátor
Második évtől
309 855 Ft A 13. hónaptól
7,99%
Végig fix Futamidő: 20 év Banki visszahívás
Az OTP Bank munkatársai a neked megfelelő napszakban veszik fel veled a kapcsolatot. A becslés a hirdető által megadott adatokon alapul. A jelen tájékoztatás nem minősül ajánlattételnek és nem teljes körű, az egyes feltételek a hitelbírálat eredményétől függően változhatnak. Kérjük, a részletekről tájékozódj az OTP Bank fiókjaiban vagy az OTP Bank honlapján közzétett vonatkozó Üzletszabályzatokból és Hirdetményekből.
Vedd fel a kapcsolatot a hirdetővel
Gombos Zita OTPip - Szigetszentmiklós Tököli út 19.B - OTP Ingatlanpont Iroda Az iroda összes hirdetése
+36 20 534 7
Vedd fel a kapcsolatot a hirdetővel
Gombos Zita OTPip - Szigetszentmiklós Tököli út 19.B - OTP Ingatlanpont Iroda Az iroda összes hirdetése
+36 20 534 7
UI_KIT.CHARACTER_COUNTER__COMPONENT.ACTUAL_CHARACTER__SR_ONLY UI_KIT.CHARACTER_COUNTER__COMPONENT.MAXIMUM_CHARACTER__SR_ONLY
Hasonló eladó ingatlanok Lepsényen
Frissítve: 1 napja
20
64,9 M Ft 319 704 Ft/m²
Eladó családi ház, Lepsény, Róka sétány
Frissítve: 2 hónapja
1
67 M Ft 670 000 Ft/m²
Eladó családi ház, Lepsény
Frissítve: 1 napja
15
73,6 M Ft 981 334 Ft/m²
Eladó sorház, Lepsény


Fedezd fel a
hasonló házakat!Még további házak Lepsényen 72 M Ft körüli értékben
Tovább a hirdetésekhez Frissítve: 1 napja
15
73,6 M Ft 981 333 Ft/m²
Eladó sorház, Lepsény

Frissítve: 1 napja
17
72 M Ft 878 049 Ft/m²
Eladó családi ház, Lepsény

Frissítve: 1 napja
17
72 M Ft 857 143 Ft/m²
Eladó családi ház, Lepsény

