+6 fotó
Hirdetéskód: 8938551
Referenciaszám: M317919-5180200
Frissítve: ma
Máriakálnok eladó családi ház 4+1 fél szobás: 74,9 millió Ft
74,9 millió Ft
832 222 Ft/m²
90 m²
242 m²
4+1 fél szoba
Eladó Ház, Máriakálnok
Újépítésű, A++ energiabesorolású családi ház eladó - modern technológia termálvíz használattal, alacsony rezsi, kiváló lokáció!
Mosonmagyaróvár közvetlen határában van, de közigazgatásilag Máriakálnokhoz tartozik.
3%-os Otthon Start Program igényelhető!
CSOK igényelhető!
2026. májusi átadás - geotermikus vagy hőszivattyú, padlófűtés!
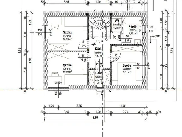
Hasznos alapterület: 90 nm | 4 + 1 szoba.
Telekterület: 315 nm.
Kétszintes, újépítésű családi ház.
Energetikai besorolás: A++.
Fűtés: geotermikus vagy hőszivattyú + padlófűtés, melegvíz ellátással.
Győr-Moson-Sopron megye egyik dinamikusan fejlődő, kedvelt környékén kínálok eladásra egy 2025-ben épülő, prémium műszaki tartalommal rendelkező, energiatakarékos családi házat.
A modern technológiáknak és a geotermikus fűtésnek köszönhetően minimális rezsiköltség, kimagasló komfort és hosszú távú értékállóság jellemzi az ingatlant.
Főbb jellemzők:
90 nm nettó alapterület.
315 nm saját telek.
4+1 szoba - ideális nagyobb családoknak vagy otthoni irodához.
Új építésű, modern, minőségi kivitelezés.
Geotermikus hűtés-fűtés vagy hőszivattyús rendszer.
Padlófűtés a teljes ingatlanban.
Geotermikus termálvíz vagy Hőszivattyú biztosítja a melegvizet is.
A++ energiaosztály - kiemelkedően alacsony fenntartási költségek.
Kétszintes modern elrendezés.
Geotermikus fűtés:
Az ingatlan különlegessége a Villapark saját, 300 méter mélyről feltörő, természetes ásványvíz minőségű termálvize, amely nemcsak a padlófűtést, hanem a teljes melegvíz-ellátást is biztosítja. Környezetbarát, fenntartható, és a legmagasabb kényelmi szintet nyújta - kompromisszumok nélkül.
Elhelyezkedés:
A fejlesztés csendes, rendezett környezetben valósul meg, kiváló közlekedéssel és minden szükséges szolgáltatás közelségével. A környék ideális családoknak, határ közeli munkavállalóknak és azoknak, akik természetközeli életre vágynak, ez által értékálló, korszerű otthont keresnek.
Az OTP Ingatlanpont előnyei:
CSOK és 3%-os OTTHON START PROGRAM igénybe vehető.
Teljes körű ügyintézés.
Kedvezményes OTP Banki hitel- és támogatási lehetőségek.
Gyors, rugalmas ügyintézés.
Megbízható ügyvédi háttér.
Ne maradjon le erről a kiemelkedő lehetőségről!
Hívjon bizalommal időpont egyeztetésért vagy további információért - akár hétvégén is rendelkezésre állok.
Referenciaszám: M317919
Tulajdonságok
Családi ház
Új építésű
Geotermikus
2025
A++
Vedd fel a kapcsolatot a hirdetővel
+36 20 419 5
Hitelkalkulátor
Második évtől
322 335 Ft A 13. hónaptól
7,99% 8,49%
Végig fix Futamidő: 20 év Banki visszahívás
Az OTP Bank munkatársai a neked megfelelő napszakban veszik fel veled a kapcsolatot. A becslés a hirdető által megadott adatokon alapul. A jelen tájékoztatás nem minősül ajánlattételnek és nem teljes körű, az egyes feltételek a hitelbírálat eredményétől függően változhatnak. Kérjük, a részletekről tájékozódj az OTP Bank fiókjaiban vagy az OTP Bank honlapján közzétett vonatkozó Üzletszabályzatokból és Hirdetményekből.
Vedd fel a kapcsolatot a hirdetővel
+36 20 419 5
Vedd fel a kapcsolatot a hirdetővel
+36 20 419 5
UI_KIT.CHARACTER_COUNTER__COMPONENT.ACTUAL_CHARACTER__SR_ONLY UI_KIT.CHARACTER_COUNTER__COMPONENT.MAXIMUM_CHARACTER__SR_ONLY
Hasonló eladó ingatlanok Máriakálnokon
Frissítve: ma
5
75,9 M Ft 828 603 Ft/m²
Eladó sorház, Máriakálnok

Frissítve: ma
8
73,9 M Ft 859 302 Ft/m²
Eladó sorház, Máriakálnok

Frissítve: 3 hónapja
8
74,9 M Ft 823 077 Ft/m²
Eladó családi ház, Máriakálnok

Fedezd fel a
hasonló házakat!Még további házak Máriakálnokon 74,9 M Ft körüli értékben
Tovább a hirdetésekhez Frissítve: ma
5
73,9 M Ft 724 510 Ft/m²
Eladó sorház, Máriakálnok

Frissítve: ma
5
75,9 M Ft 828 603 Ft/m²
Eladó sorház, Máriakálnok

Frissítve: 1 napja
4
79,9 M Ft 815 306 Ft/m²
Eladó családi ház, Máriakálnok

