+17 fotó
Hirdetéskód: 8816151
Referenciaszám: M298326
Feltöltve: 1 napja
Mesteri eladó családi ház 3 szobás: 48,53 millió Ft
48,53 millió Ft
251 436 Ft/m² *
* A m² árat a hirdető adta meg.
193 m²
2496 m²
3 szoba
Leírás
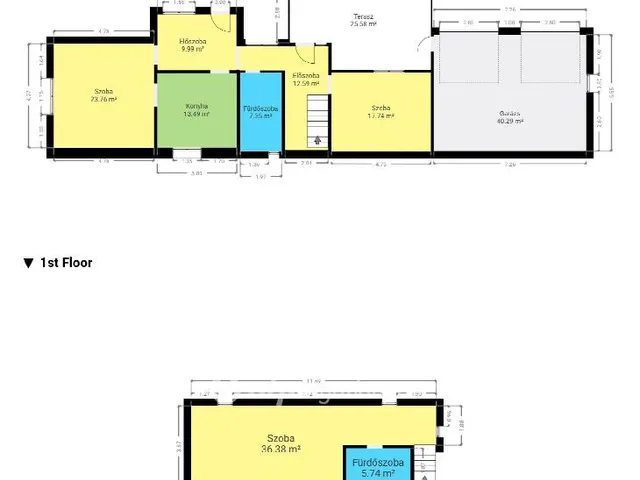
Remek lehetőség termálfürdővel rendelkező településen, nyugodt, csendes környezetben, Ság hegyi panorámával! Családosok számára ideális ház keresi tulajdonosait! Eladó Mesteriben, Vas vármegyében, Sárvártól alig 10 percre, Celldömölktől 5 percre, Pápától 15 percre egy 2 szobás, kő és tégla falazatú, 193 m2-es elbűvölő, kiválló elrendezésű családi ház, mely 2496 m2 területű telken fekszik. A csendes, családias település, kiváló gyógyvízzel rendelkezik, könnyen elérhető tömegközlekedéssel és autóval is. A ház szerkezetileg kiválló, jelenleg 90%-os, készültségi szinten várja új tulajdonosát. A házat tágas, világos terek jellemzik. Az ingatlan jelenlegi kialakítása szerint 3 lakószobát, melyek közül egy az emeleten van, 2 fürdőszobát, konyha-étkezőt, előszobát, közlekedőt, előteraszt, 2 beállós garázst, tartalmaz. Az udvari rész rendezett, füvesitett egy pince is található rajta. Az új lakók kreativitására és személyes ízlésére van bízva a hátsó udvar bekerítése, lehetőséget teremtve saját, egyedi otthonuk kialakítására. A nyílászárók a földszinten műanyagok, 3 rétegű üvegezéssel rendelkeznek, redőnnyel vannak felszerelve, az emeleten fa Velux tetőablakok találhatók. Az ingatlanban izlés szerint kialakíthatók fűtési megoldások. A tetőszerkezet betoncserepes fedéssel van ellátva, biztosítva a megbízható hőszigetelést és esztétikus külsőt. Mesteri csendes környezete ideális választás a családosok számára, hiszen nyugodt, barátságos légkört kínál, miközben a közeli városok könnyen elérhetők autóval vagy tömegközlekedéssel, kikapcsolódásra is számos közeli lehetőség kinálkozik. A település jól megközelíthető, a közeli buszmegállókból rendszeres járatok indulnak, így a mindennapi ingázás sem jelent problémát. Az ingatlan számos jövőbeli lehetőséget rejt magában, jelenlegi állapot lehetőséget ad a leendő tulajdonosnak, hogy saját ízlése és elképzelései szerint alakítsa át a ház belső és külső megjelenését. Ez az ingatlan remek lehetőséget kínál egy modern, kényelmes otthon kialakítására egy csendes, ugyanakkor folyamatosan fejlődő környezetben, lehet lakóház, de kiadható apartmannak is. Az ingatlan minden szempontból kényelmes lakhatást biztosít. Az otthonosan kialakított házat ajánlom mindazon vevők részére, Az ingatlan finanszírozásához szükséges hitel ügyintézése irodánkon keresztül díjmentesen elérhető! Az adásvétellel kapcsolatos ügyek intézésében segítséget nyújtunk, a szerződéskötéshez megbízható ügyvédi közreműködést biztosítunk. Otthon Start Hitelprogram. Az ingatlanról készült leírás és képek az OTP Ingatlanpont Kft. szellemi tulajdonát képezik. Amennyiben felkeltette érdeklődését az általam kínált ingatlan, keressen bizalommal!
Tulajdonságok
Családi ház
1
Újszerű
1970
Nem adta meg a hirdető
Vedd fel a kapcsolatot a hirdetővel
+36 70 315 6
Hitelkalkulátor
Második évtől
208 838 Ft A 13. hónaptól
7,99%
Végig fix Futamidő: 20 év Banki visszahívás
Az OTP Bank munkatársai a neked megfelelő napszakban veszik fel veled a kapcsolatot. A becslés a hirdető által megadott adatokon alapul. A jelen tájékoztatás nem minősül ajánlattételnek és nem teljes körű, az egyes feltételek a hitelbírálat eredményétől függően változhatnak. Kérjük, a részletekről tájékozódj az OTP Bank fiókjaiban vagy az OTP Bank honlapján közzétett vonatkozó Üzletszabályzatokból és Hirdetményekből.
Vedd fel a kapcsolatot a hirdetővel
+36 70 315 6
Vedd fel a kapcsolatot a hirdetővel
+36 70 315 6
UI_KIT.CHARACTER_COUNTER__COMPONENT.REMAINING_SPACE__SR_ONLYUI_KIT.CHARACTER_COUNTER__COMPONENT.MAXIMUM_CHARACTER__SR_ONLY
Hasonló eladó ingatlanok Mesteriben
Frissítve: 12 napja
20
48,53 M Ft 251 436 Ft/m²
Eladó családi ház, Mesteri

Frissítve: ma
20
48,53 M Ft 251 435 Ft/m²
Eladó családi ház, Mesteri

Frissítve: 5 napja
16
49,6 M Ft 413 333 Ft/m²
Eladó családi ház, Szentgotthárd, Parkerdő út


Fedezd fel a
hasonló házakat!Még további házak Vas megyében 48,53 M Ft körüli értékben
Tovább a hirdetésekhez Frissítve: 12 napja
20
53 M Ft 410 853 Ft/m²
Eladó családi ház, Borgáta

Frissítve: 8 napja
20
49 M Ft 569 767 Ft/m²
Eladó családi ház, Szombathely

Frissítve: ma
20
49,9 M Ft 280 337 Ft/m²
Eladó családi ház, Magyarlak


Töltsd fel hirdetésed ingyenesen!
Egyszerű