+2 fotó
Hirdetéskód: 8979075
Referenciaszám: 352453
Feltöltve: ma
Mogyoród eladó családi ház 4 szobás: 91,9 millió Ft
91,9 millió Ft
1,04 millió Ft/m² *
* A m² árat a hirdető adta meg.
88 m²
461 m²
4 szoba
Eladó Ház, Mogyoród 91.900.000 Ft
Álmai Otthona Mogyoródon (Ófalu)!
Fedezze fel az új építésű, modern családi házak által kialakított otthon teremtette lehetőségeket csendes, mellékutcai környezetben!
Kiemelkedő jellemzők:
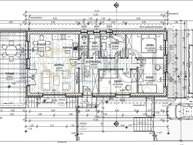
Tágas elrendezés: Az Ön új otthona nettó 88 m²-es, 1 nappali és 3 hálószobás kialakítással rendelkezik, ahol a család minden tagja megtalálhatja a számára ideális helyet a kényelmes együttéléshez.
Korszerű fűtés-hűtés rendszer: Magas műszaki tartalom és megújuló energiaforrások használata vár Önre. A hőszivattyú biztosítja a fűtést, illetve a padlófűtést, termosztátos vezérléssel a maximális kényelem érdekében.
Gyönyörű terasz: Az ingatlanhoz tartozó 25 m²-es terasz, amely burkolása is az árban szerepel, ideális helyszín baráti összejövetelekhez vagy családi grillesekhez.
Környezet és elhelyezkedés:
Az ingatlan egy 461 m²-es saját telken helyezkedik el, önálló családi házként. Utcafrontról megközelíthető, ezzel biztosítva a magánéletet és a csendet.
A tervezett építkezés 2026. III. NEGYEDÉVBEN indul, lehetőséget biztosítva arra, hogy személyre szabja belső elrendezését saját igényei szerint.
Kiemelt előnyök:
Pénzügyi lehetőségek: Babaváró támogatás, CSOK PLUSZ illetékmentesség, Otthon Start programra jogosult hitel igényelhető, így könnyedén megvalósíthatja álmai otthonát.
Megbízható kivitelező: Tapasztalt és tőkeerős kivitelezők munkáját élvezheti, akik precíz és minőségi anyagokkal dolgoznak. Korábbi referenciaházak a közelben igazolják a szakmai felkészültségüket.
Tulajdonságok:
Amerikai konyhás, világos nappali
3 külön hálószoba
1 fürdőszoba + 2 WC
Saját, privát 461 m²-es telekterület
Bővebb információért és részletes tájékoztatásért keressen bizalommal!
• Falazat: Leiertherm 30-as N+F tégla
• Szigetelés: homlokzaton 15 cm-es hőszigetelő rendszer, a padozat alatt 15 cm lépésálló
• Hőszivattyús rendszer padlófűtéssel
• eps, födémszigetelés 30 cm kőzetgyapot
• Nyílászárók: fehé 5 kamrás 3 rétegű üvegezéssel, (külső oldalon színes – dióbarna – kivitelben)
• Áram ellátás 3x32A, + 1x20 A"H" tarifa
• 1 DB 5 KW-os (GREE) Inverteres Hütő-fütő Klíma
• Antracit Bramac cserép
Tulajdonságok:
• amerikai konyhás világos nappali
• 3 db hálószoba
• 1 db fürdő / 2wc
• Saját privát telekterület 461 nm
• Riasztó rendszer vezetékelve
• elektromos kapu előkészítés
Bővebb információért és személyes tájékoztatásért keressen bennünket bizalommal!
IRODÁNK INGYENES HITEL ÜGYINTÉZÉSSEL, TANÁCSADÁSSAL, SZÁMOS BANK AJÁNLATÁVAL ÉS AZ ÚJ CSOK FOLYÓSÍTÁSÁVAL VÁRJA ÜGYFELEIT!
Tulajdonságok
Családi ház
1
Új építésű
2026
Nem adta meg a hirdető
Vedd fel a kapcsolatot a hirdetővel
+36 20 943 0
Hitelkalkulátor
Második évtől
395 496 Ft A 13. hónaptól
7,99% 8,49%
Végig fix Futamidő: 20 év Banki visszahívás
Az OTP Bank munkatársai a neked megfelelő napszakban veszik fel veled a kapcsolatot. A becslés a hirdető által megadott adatokon alapul. A jelen tájékoztatás nem minősül ajánlattételnek és nem teljes körű, az egyes feltételek a hitelbírálat eredményétől függően változhatnak. Kérjük, a részletekről tájékozódj az OTP Bank fiókjaiban vagy az OTP Bank honlapján közzétett vonatkozó Üzletszabályzatokból és Hirdetményekből.
Vedd fel a kapcsolatot a hirdetővel
+36 20 943 0
Vedd fel a kapcsolatot a hirdetővel
+36 20 943 0
UI_KIT.CHARACTER_COUNTER__COMPONENT.ACTUAL_CHARACTER__SR_ONLY UI_KIT.CHARACTER_COUNTER__COMPONENT.MAXIMUM_CHARACTER__SR_ONLY
Hasonló eladó ingatlanok Mogyoródon
Frissítve: 14 napja
5
92,9 millió Ft 844,5 ezer Ft/m²
Eladó sorház, Mogyoród

Frissítve: 14 napja
17
98,5 millió Ft 856,5 ezer Ft/m²
Eladó ikerház, Mogyoród

Frissítve: 14 napja
5
92,9 millió Ft 844,5 ezer Ft/m²
Eladó sorház, Mogyoród


Fedezd fel a
hasonló házakat!Még további házak Mogyoródon 91,9 M Ft körüli értékben
Tovább a hirdetésekhez Frissítve: 14 napja
16
99,9 millió Ft 1,04 millió Ft/m²
Eladó ikerház, Mogyoród

Frissítve: 6 napja
19
86 millió Ft 977,3 ezer Ft/m²
Eladó családi ház, Mogyoród
Frissítve: 14 napja
20
98 millió Ft 632,3 ezer Ft/m²
Eladó családi ház, Mogyoród, Szántó utca

