+2 fotó
Hirdetéskód: 8886303
Referenciaszám: HZ022932-5147389
Frissítve: 1 napja
Ócsa eladó családi ház 5 szobás: 102,5 millió Ft
102,5 millió Ft
1 126 374 Ft/m²
91 m²
633 m²
5 szoba
Eladó ház, Ócsa
Új építésű ingatlanok Ócsa központi részén!
A kiváló lokációban sorra kerülő beruházás 1 ikerházat (2 lakás) és 1 különálló házat foglal magában.
A telek teljeskörűen közművesített, csatornarendszerre rákötött.
Az önállócsaládi házhoz tartozik fedett terasz, kocsibeálló.
Az ingatlanok 30% önerővel leköthetők.
Várható átadás: 2026
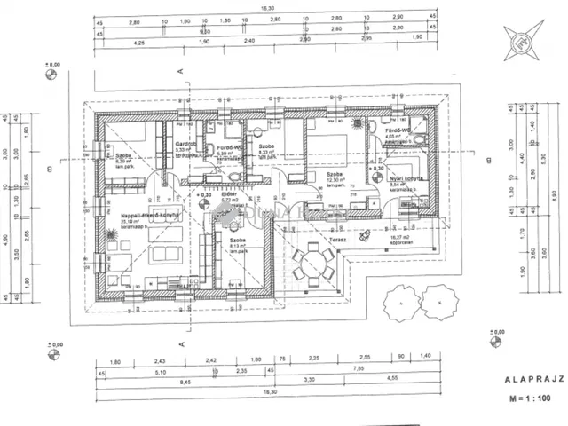
A ház fűtött hasznos lapterülete 91,37 m2, melyhez 16,27m2 fedett terasz tartozik. A belső elrendezés, válaszfalak még változtathatók az egyedi igényekhez igazodva. Jelenleg 4 hálószoba ,1 nappali-étkező, 2 fürdőszoba, 1 háztartási helység és egy nyári konyha tartozik. A belső elrendezés változtatható. Aki a tágasabb tereket kedveli, annak készült egy 3 szoba+ nappaliból álló terv is. A tetőszerkezetet úgy készítették, hogy ez a terv is megvalósulhasson.
Az önálló családi ház belső útról közelíthető meg!
ÁLTALÁNOS MŰSZAKI LEÍRÁS :
A magánút hat méter szélességben murvázva lesz, olyan terepszint magassággal, mely lehetővé teszi a későbbi térkövezési munkákat.
A magánút és az eladásra kínált telkek közé 3D kerítés kerül, 1 gépkocsi kapuval és 1 gyalogos kapuval.
Az épület önálló közmű méréseket fog kapni (víz, csatorna, villamos megtáplálás)
AZ ÉPÜLET ÁLTALÁNOS MŰSZAKI LEÍRÁSA:
Lakás tervezett helyiségkiosztása:
1. nappali-étkező-konyha 25,19 m2 kerámia
2. hálószoba 12,30 m2 laminált parketta
3. hálószoba 8,39 m2 laminált parketta
4. hálószoba 8,33 m2 laminált parketta
5. hálószoba 8,13 m2 laminált parketta
6. fürdő-WC 5,39 m2 kerámia
7. fürdő-WC 4,05 m2 kerámia
8. előtér 5,72 m2 kerámia
9. nyárikonyha 8,54 m2 kerámia
10. gardrób 5,33 m2 kerámia összesen: 91,37 m2
11. fedett terasz 16,27 m2 kőporcelán
Az épület vasbeton sávalapra épített Porotherm 30 N+F tégla falazattal készült, kerámia áthidalókkal és adott pontokon a statikai terv szerint vasbeton gerendák kialakításával.
A főfalakat vasbeton koszorú fogja össze.
A válaszfalak 10-es ytong téglából készülnek.
A tetőszerkezet úgynevezett szeglemezes szerkezet lesz, mely lehetővé teszi a válaszfalak tervtől eltérő építését.
A tetőszerkezetre fólia, impregnált tetőléc, léc és végül betoncserép kerül.
A bádogos szerkezetek strukturált alumíniumból készültek.
Az épület 15 cm-es hőszigetelő rendszerrel lesz hőszigetelve.
A nyílászárók kívül belül fehér színben gyártott 3 rétegű üvegezéssel készült szerkezetek lesznek.
A 90×150-es ablakok műanyag redőnnyel (falsík alatti) és rovarhálóval lesznek szerelve.
Belső ajtók Eurowood Dekor Extra kivitelből kerülnek beépítésre a Jafholz kínálatából.
Az lakás mennyezete gipszkarton
A mennyezet terv szerinti 25 cm hőszigetelést kap a padlástér felől.
A padlástérre az épületben elhelyezett lenyitható lépcsőn keresztül lehet feljutni, a padlástér átadáskor csak részben lesz alkalmas tárolásra.
Külön kérésre a padlásteret járhatóvá teszik.
VILLAMOS HÁLÓZAT:
Az épület a magánút elején jobb oldalon elhelyezett mérőhelyekről kapnak betáplálást.
Az épület 1×32 A-es megtáplálást kap, valamint 3x20A H tarifás mérést a hőszivattyú és az oldalfali fűtő-hűtő klímaberendezések megtáplálásához.
Az energia elosztását a lakáson belül egy-egy a bejáratnál elhelyezett kismegszakító tábla biztosítja.
A gyalogos bejárókhoz csengőt és kaputelefon előkészítést biztosítunk (kábelezés, védőcsövezés), de magukat a készülékeket nem.
Az erősáramú villamos hálózat kiépítését az alábbi berendezések részere biztosítjuk:
világítási hálózat (5 áramkör, legrand Valena kapcsolókkal, oldalfali és mennyezeti lámpa kiállásokkal)
dugaszoló aljzatok (5 áramkör, 35 szerelvény, általános aljzatok, mosógép aljzat, mosogatógép aljzat, TV aljzat stb.)
gépészeti berendezések megtáplálása (fűtést vezérlő elektronika, 5 db oldalfali split klíma).
A gyengeáramú hálózat kiépítését az alábbi rendszerek részére biztosítjuk:
4 db informatikai RJ45-ös aljzat
1 db TV kiállás koax kábellel
Az internet elérését biztosító külső kábel részére védőcsövet fektettünk le a villamos fogyasztásmérők szekrényeitől az előtérben elhelyezésre kerülő kismegszakító tábláig, illetve a fogyasztásmérőktől a közterületen található első villanyoszlopig.
ÉPÜLETGÉPÉSZET:
A lakás ívóvízzel, szennyvízcsatornával, lesz ellátva.
A csapadékvíz a föld alatti védőcsöveken a kertbe lesz elvezetve.
Ívóvízhálózat:
A lakás vízórája az utcafronton elhelyezett vízóra aknában lesz elhelyezve.
Az aknától a lakásokig 25-ös műanyag (kpe) vezetékkel álltunk el.
A hálózatba az alábbi elemek kerülnek elhelyezésre:
szűrővel ellátott nyomáscsökkentő
ötrétegű csövek préselt idomokkal
fittingek
Fűtés:
A lakás alapfűtését helyiségenként vezérlehető padlófűtés biztosítja, mely rendszereket levegő-víz hőszivattyú látja el fűtővízzel.
Melegvíz készítés:
A lakások melegvíz ellátását a hőszivattyú biztosítja
Szaniter berendezések:
csapok maximálisan nettó 12.000 Ft/db-ig a MOFÉM kínálatából, a konyhai csap kivételével, a konyhai csap a konyhabútor tartozéka.
kád kompletten lábakkal, lefolyóval maximum nettó 100.000 Ft/db-ig.
w.c.-ék kompletten (2 csésze, 2 tartály, 2 ülőket) maximum nettó 80.000 Ft/db-ig az Alföldi kínálatából.
kézmosók (lakásonként 2 db) maximum nettó 45.000 Ft/db-ig, az Alföldi kínálatából.
FELÜLETKÉPZÉS:
A falakat 2 réteg glettel és 2 réteg fehér HÉRA festékkel festik
A burkoló anyagokat maximálisan nettó 5000 Ft/m2 áron a Zalakerámia kínálatából, a melegburkolást illetően és maximum nettó 5000 Ft/m2 áron a Jafholz kínálatából.
Ócsa Budapesttől mindössze autóval 30 perc távolságra van. A helyiség infrastruktúrája fejlett, tömegközlekedése alkalmas a napi szintű Budapestre való munkába járásra. Spar, bank, posta, a közelben.
Teljeskörű hitelügyintézéssel és akár ügyvédi szolgáltatással állunk rendelkezésére!
Várom megtisztelő hívását!
Referencia szám: HZ022932
Tulajdonságok
Családi ház
Új építésű
Hőszivattyú
2026
C
Vedd fel a kapcsolatot a hirdetővel
+36 1 690 10
Hitelkalkulátor
Második évtől
441 113 Ft A 13. hónaptól
7,99% 8,49%
Végig fix Futamidő: 20 év Banki visszahívás
Az OTP Bank munkatársai a neked megfelelő napszakban veszik fel veled a kapcsolatot. A becslés a hirdető által megadott adatokon alapul. A jelen tájékoztatás nem minősül ajánlattételnek és nem teljes körű, az egyes feltételek a hitelbírálat eredményétől függően változhatnak. Kérjük, a részletekről tájékozódj az OTP Bank fiókjaiban vagy az OTP Bank honlapján közzétett vonatkozó Üzletszabályzatokból és Hirdetményekből.
Vedd fel a kapcsolatot a hirdetővel
+36 1 690 10
Vedd fel a kapcsolatot a hirdetővel
+36 1 690 10
UI_KIT.CHARACTER_COUNTER__COMPONENT.ACTUAL_CHARACTER__SR_ONLY UI_KIT.CHARACTER_COUNTER__COMPONENT.MAXIMUM_CHARACTER__SR_ONLY
Hasonló eladó ingatlanok Ócsán
Frissítve: 8 napja
6
94,9 M Ft 958 586 Ft/m²
Eladó családi ház, Ócsa

Feltöltve: ma
19
109,9 M Ft 1 292 941 Ft/m²
Eladó ikerház, Ócsa

Frissítve: ma
5
102,5 M Ft 1 126 374 Ft/m²
Eladó családi ház, Ócsa


Fedezd fel a
hasonló házakat!Még további házak Ócsán 102,5 M Ft körüli értékben
Tovább a hirdetésekhez Frissítve: 4 napja
20
93,9 M Ft 626 000 Ft/m²
Eladó családi ház, Ócsa

Frissítve: 4 napja
10
109,9 M Ft 1 292 941 Ft/m²
Eladó ikerház, Ócsa

Frissítve: 25 napja
15
93 M Ft 531 429 Ft/m²
Eladó családi ház, Ócsa
