

+10 fotó
Hirdetéskód: 8733946
Referenciaszám: M309024-5053464
Feltöltve: ma
Sárkeresztes eladó családi ház 4 szobás: 76,9 millió Ft
76,9 millió Ft
937 805 Ft/m²
82 m²
750 m²
4 szoba
Eladó Ház, Sárkeresztes
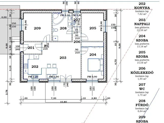
Fejér vármegye, Székesfehérvár szomszéd településén, SÁRKERESZTESEN kínáljuk eladásra ezt az új építésű, modern családi házat, amely ideális otthon lehet két gyermekes családok számára. FALUSI CSOK igényelhető, így akár 7,5M Ft vissza nem térítendő támogatás igénybe vehető két gyermek után! A 750 nm-es telken a nettó 82 nm-es ingatlan egy tágas, fiatalos környezetet nyújt, amely kényelmet és funkcionalitást ötvöz. A ház három hálószobával, egy tágas fürdőszobával és külön WC-vel rendelkezik, így elegendő helyet biztosít a növekvő családnak. Az amerikai konyhás nappali és étkező teret teremt a közös időtöltéshez és a családi összejövetelekhez. Az ingatlan a legújabb energetikai elvárásoknak megfelelően épül, így a 15 centis grafitos szigetelés, a műanyag nyílászárók, valamint a napelem és az elektromos fűtés (hőszivattyú akár) garantálja a kedvező rezsit, amely fontos szempont lehet egy fiatal család számára. Az ingatlantól 5 perc sétára megtalálható iskola, patika, orvosi rendelő, így az elhelyezkedése kíváló! Az építkezést megbízható, leinformálható kivitelező végzi, akinek több évtizedes tapasztalata biztosítja az ingatlan minőségét és megbízhatóságát. Szerződéskötéstől számított 9 hónap a tervezett átadás. Ha bármilyen kérdése merülne fel az ingatlannal kapcsolatban, ne habozzon felvenni velünk a kapcsolatot, akár hétvégén is! Ügyfeleink teljes körű támogatást kapnak az adásvétel lebonyolításában, és egyedi kamatkedvezményeket biztosítunk hitelügyeikhez. Ne habozzon, ez az otthon lehet az önök családi álma! Vegye fel velünk a kapcsolatot még ma, és lépjenek közelebb álmaik otthonához!
Paragi Anikó +36 30 768 0145 /
aniko.paragi@otpip.hu
Referencia szám: M309024
Tulajdonságok
Családi ház
Új építésű
Elektromos
2025
A++
Vedd fel a kapcsolatot a hirdetővel
+36 30 768 0
Hitelkalkulátor
Második évtől
330 943 Ft A 13. hónaptól
7,99% 8,49%
Végig fix Futamidő: 20 év Banki visszahívás
Az OTP Bank munkatársai a neked megfelelő napszakban veszik fel veled a kapcsolatot. A becslés a hirdető által megadott adatokon alapul. A jelen tájékoztatás nem minősül ajánlattételnek és nem teljes körű, az egyes feltételek a hitelbírálat eredményétől függően változhatnak. Kérjük, a részletekről tájékozódj az OTP Bank fiókjaiban vagy az OTP Bank honlapján közzétett vonatkozó Üzletszabályzatokból és Hirdetményekből.
Vedd fel a kapcsolatot a hirdetővel
+36 30 768 0
Vedd fel a kapcsolatot a hirdetővel
+36 30 768 0
UI_KIT.CHARACTER_COUNTER__COMPONENT.REMAINING_SPACE__SR_ONLYUI_KIT.CHARACTER_COUNTER__COMPONENT.MAXIMUM_CHARACTER__SR_ONLY
Hasonló eladó ingatlanok Sárkeresztesen
Frissítve: 2 hónapja

20
78 M Ft 433 333 Ft/m²
Eladó családi ház, Sárkeresztes
Frissítve: 16 napja

20
76 M Ft 716 981 Ft/m²
Eladó családi ház, Sárkeresztes

Frissítve: 10 napja

12
76,9 M Ft 936 663 Ft/m²
Eladó családi ház, Sárkeresztes


Fedezd fel a
hasonló házakat!Még további házak Fejér megyében 76,9 M Ft körüli értékben
Tovább a hirdetésekhez Frissítve: 2 hónapja

1
78 M Ft 557 143 Ft/m²
Eladó családi ház, Sárkeresztes, Bem utca 1.
Frissítve: 11 napja

9
76 M Ft 419 890 Ft/m²
Eladó családi ház, Csákvár, Kossuth utca

Frissítve: 11 napja

20
69,99 M Ft 530 227 Ft/m²
Eladó családi ház, Perkáta


Töltsd fel hirdetésed ingyenesen!
Egyszerű