+17 fotó
Hirdetéskód: 8970090
Referenciaszám: PR071771-HZ-30217
Feltöltve: 2 napja
Sárvár eladó családi ház 5 szobás: 99,9 millió Ft
99,9 millió Ft
951 429 Ft/m² *
* A m² árat a hirdető adta meg.
105 m²
250 m²
5 szoba
Leírás
Sárváron a termál fürdőtől 1 km-re, a Hatvany kastély közelében, kertvárosi környezetben, új építésű lakóház eladó !
A városközpont közelsége, a zöld környezet, a forgalommentes mellékutca minden korosztály számára vonzó lehet. (Az egy telekre épült két lakóház egymástól elválasztott, nincs közös pontja, külön utcából megközelíthetőek.) MÁR CSAK 1 maradt !!!
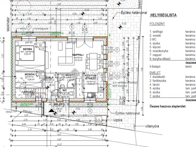
A tervezés során fontos szempont volt a minőség, a költséghatékony fenntartás és az ingatlan értékállósága. Az épület fűtését, illetve meleg víz ellátását a kor igényeinek leginkább megfelelő,egyedi kondenzációs-gázkazán biztosítja, egyedi méréssel és szabályozással, a hőleadás padlófűtéssel történik. Igazi családbarát kialakítás : A földszinten amerikai konyhás nappali, egy hálószoba, fürdő, külön wc és egy háztartási helyiség. Az emeleten három hálószoba, egy nagy fürdőszoba dupla mosdóval, káddal és zuhanyzóval is valamint egy külön wc is van, hasznos alapterület összesen 105,32 m2 . Nyugis terasz a kertben, valamint akár 2 autónak térkövezett beálló...
A projekt főbb jellemzői:
- nappaliban és az emeleten is beépített hűtő-fűtő klíma - termálfürdő közeli, frekventált elhelyezkedés, kis forgalmú mellékutcában - igényes, városképbe illő, klasszikus külső megjelenés - fenntartható, alacsony energiafelhasználás ingatlan - 2 fürdő, 2 wc - 3 rétegű nyílászárók - Választható belső burkolatok, szaniterek, beltéri ajtók - terasz, kert - térkövezett gépkocsibeálló- telek 300 m2
OTTHONstart hitel - Családi Otthonteremtési Kedvezmény + Hitel igényelhető! - 5% Áfa, ami CSOK+-os vásárlás esetén visszaigényelhető - Teljes illetékmentesség CSOK+-os vásárlás esetén
Az építkezés a tervezett ütemben halad, az épület szerkezetkész állapotban van, szerződést követő 60-90 napon belül birtokba vehető !
Naprakész információk a Duna House irodákban!
Helyszínrajz, műszaki leírás, alaprajz, műszaki felszereltség, pontos tájékoztatás nálunk, keressen bizalommal !
Tulajdonságok
Családi ház
Új építésű
2026
20 m²
Nem adta meg a hirdető
Vedd fel a kapcsolatot a hirdetővel
+36 94 814 1
Hitelkalkulátor
Második évtől
429 924 Ft A 13. hónaptól
7,99% 8,49%
Végig fix Futamidő: 20 év Banki visszahívás
Az OTP Bank munkatársai a neked megfelelő napszakban veszik fel veled a kapcsolatot. A becslés a hirdető által megadott adatokon alapul. A jelen tájékoztatás nem minősül ajánlattételnek és nem teljes körű, az egyes feltételek a hitelbírálat eredményétől függően változhatnak. Kérjük, a részletekről tájékozódj az OTP Bank fiókjaiban vagy az OTP Bank honlapján közzétett vonatkozó Üzletszabályzatokból és Hirdetményekből.
Vedd fel a kapcsolatot a hirdetővel
+36 94 814 1
Vedd fel a kapcsolatot a hirdetővel
+36 94 814 1
UI_KIT.CHARACTER_COUNTER__COMPONENT.ACTUAL_CHARACTER__SR_ONLY UI_KIT.CHARACTER_COUNTER__COMPONENT.MAXIMUM_CHARACTER__SR_ONLY
Hasonló eladó ingatlanok Sárváron
Frissítve: 30 napja
9
99,9 M Ft 951 429 Ft/m²
Eladó családi ház, Sárvár
Frissítve: 9 napja
12
99,5 M Ft 912 844 Ft/m²
Eladó családi ház, Sárvár
Frissítve: 9 napja
14
105,36 M Ft 916 174 Ft/m²
Eladó családi ház, Sárvár

Fedezd fel a
hasonló házakat!Még további házak Vas megyében 99,9 M Ft körüli értékben
Tovább a hirdetésekhez Feltöltve: 3 hónapja
8
97 M Ft 1 000 000 Ft/m²
Eladó családi ház, Sárvár
Frissítve: 9 napja
14
99,9 M Ft 960 577 Ft/m²
Eladó családi ház, Sárvár

Frissítve: 8 napja
20
93 M Ft 489 474 Ft/m²
Eladó sorház, Sárvár

