+15 fotó
Hirdetéskód: 8818187
Referenciaszám: M314937-5101991
Frissítve: 10 napja
Szikszó eladó családi ház 2 szobás: 37 millió Ft
37 millió Ft
406 593 Ft/m²
91 m²
1095 m²
2 szoba
Eladó Ház, Szikszó
Eladó családi ház Szikszó csendes utcájában, tágas telekkel!
Eladásra kínálok Szikszón, nyugodt, rendezett környezetben, egy 91 m2-es, családi házat, amely egy 1095 m2-es, gondozott telken helyezkedik el. Az ingatlan 1960-ban épült, főfalai vályogból, a mellékfalak téglából készültek.
Ideális választás családoknak vagy pároknak, akik csendes, biztonságos lakókörnyezetben keresnek otthont.
Az évek során a ház folyamatos karbantartást kapott, több fontos felújítás is megtörtént: műanyag, hőszigetelt nyílászárók, vízvezeték cseréje, villanyvezetékek részben felújítva, tetőszerkezet részben felújítva,30 cm vastag üveggyapot födémszigetelés, ami jó hőmegtartást biztosít.
A fűtést gázkonvektorok, a melegvizet villanybojler biztosítja, így a fenntartási költségek kedvezőek.
Helyiségek és burkolatok:
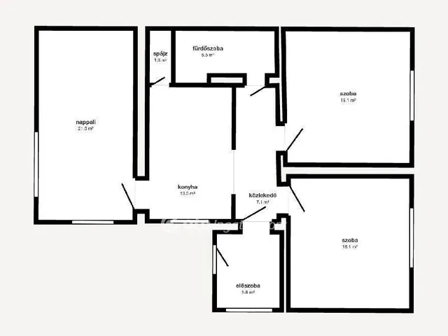
A ház elrendezése praktikus és tágas: nappali + étkező ,konyha, két hálószoba, fürdőszoba és WC egyben, előszoba. A szobákban laminált padló, a többi helyiségben járólap található.
A nappali folytatásában terasz kialakítása is lehetséges, és a filagória alapja már elkészült, így a kert további kényelmi funkciókkal könnyen bővíthető.
Telek és környezet:
A 1095 m2-es telek rendezett, jól kihasználható, többféle lehetőséget kínál: kertészkedésre, pihenésre, akár kisállattartásra is kiváló. Udvaron garázs is megtalálható.
A környék csendes, jó szomszédsággal és biztonságos lakókörnyezettel.
A vételár tartalmazza:
A ház részben bútorozott, a következő bútorok a vételár részét képezik: konyhabútor, nappali bútor, hálószobabútor.
Ez az ingatlan remek lehetőség mindazoknak, akik egy nyugodt, biztonságos környéken, felújított, azonnal költözhető házat keresnek Szikszón.
OTP Banki hátterünknek köszönhetően finanszírozási igényekben (pl. Otthon Start Hitelprogram, Babaváró, Falusi CSOK, CSOK Plusz, Lakáshitel, Személyi kölcsön stb.), illetve biztosítások tekintetében is díjmentesen, soron kívüli ügyintézéssel segítem ügyfeleim!
Érdeklődés esetén hivatkozzon M314937 azonosítási számra.
Tulajdonságok
Családi ház
Jó állapotú
Gáz (konvektor)
1962
Nem adta meg a hirdető
Vedd fel a kapcsolatot a hirdetővel
Fodor Zsuzsanna OTPip - Miskolc Szemere Bertalan utca 20 - OTP Ingatlanpont Iroda Az iroda összes hirdetése
+36 30 700 3
Hitelkalkulátor
Második évtől
159 231 Ft A 13. hónaptól
7,99%
Végig fix Futamidő: 20 év Banki visszahívás
Az OTP Bank munkatársai a neked megfelelő napszakban veszik fel veled a kapcsolatot. A becslés a hirdető által megadott adatokon alapul. A jelen tájékoztatás nem minősül ajánlattételnek és nem teljes körű, az egyes feltételek a hitelbírálat eredményétől függően változhatnak. Kérjük, a részletekről tájékozódj az OTP Bank fiókjaiban vagy az OTP Bank honlapján közzétett vonatkozó Üzletszabályzatokból és Hirdetményekből.
Vedd fel a kapcsolatot a hirdetővel
Fodor Zsuzsanna OTPip - Miskolc Szemere Bertalan utca 20 - OTP Ingatlanpont Iroda Az iroda összes hirdetése
+36 30 700 3
Vedd fel a kapcsolatot a hirdetővel
Fodor Zsuzsanna OTPip - Miskolc Szemere Bertalan utca 20 - OTP Ingatlanpont Iroda Az iroda összes hirdetése
+36 30 700 3
UI_KIT.CHARACTER_COUNTER__COMPONENT.ACTUAL_CHARACTER__SR_ONLY UI_KIT.CHARACTER_COUNTER__COMPONENT.MAXIMUM_CHARACTER__SR_ONLY
Hasonló eladó ingatlanok Szikszón
Frissítve: 24 napja
17
34 M Ft 323 810 Ft/m²
Eladó családi ház, Szikszó

Frissítve: 23 napja
9
37 M Ft 355 769 Ft/m²
Eladó családi ház, Szikszó

Frissítve: 24 napja
18
37 M Ft 406 594 Ft/m²
Eladó családi ház, Szikszó


Fedezd fel a
hasonló házakat!Még további házak Borsod-Abaúj-Zemplén megyében 37 M Ft körüli értékben
Tovább a hirdetésekhez Frissítve: 18 napja
18
37 M Ft 406 593 Ft/m²
Eladó családi ház, Szikszó

Frissítve: 10 napja
18
37 M Ft 406 593 Ft/m²
Eladó családi ház, Szikszó

Frissítve: 10 napja
18
37 M Ft 406 593 Ft/m²
Eladó családi ház, Szikszó

