Hirdetéskód: 8923136
Referenciaszám: 705100563
Frissítve: 18 napja
Valkó eladó családi ház 8 szobás: 45,99 millió Ft
45,99 millió Ft
207,2 ezer Ft/m²
222 m²
1097 m²
8 szoba
Nagy méretű, felújítandó ház 1097 m² telken Valkón – rengeteg lehetőséggel
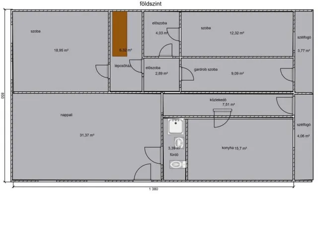
Eladásra kínálunk Valkón, az Arany János utcában egy felújítandó állapotú, kétszintes családi házat, amely 222 m² alapterülettel rendelkezik.
Az ingatlan egy 1097 m²-es telken helyezkedik el, ahol a főépület mellett további felújítandó melléképületek is találhatók, így számos átalakítási és hasznosítási lehetőséget kínál az új tulajdonos számára.
A ház méretének és elrendezésének köszönhetően kiváló lehet nagyobb család számára, de befektetési vagy fejlesztési célra is remek alapot ad, hiszen a jelenlegi állapot lehetőséget biztosít arra, hogy az ingatlant teljes mértékben saját elképzelések szerint újítsák fel.
A tágas telek és a jelentős alapterület ritka kombináció a környéken, így az ingatlan komoly potenciált rejt magában.
Főbb jellemzők:
222 m² alapterület
kétszintes épület
felújítandó állapot
1097 m² telek
melléképületek a telken
sokféle hasznosítási lehetőség
Az ingatlan ideális választás lehet mindazok számára, akik nagy alapterületű házat keresnek és saját elképzeléseik szerint szeretnék kialakítani új otthonukat vagy befektetésüket.
További részletekért várom megtisztelő hívását!
Tulajdonságok
Családi ház
2
Felújítandó
Gázkazán
1986
Nem adta meg a hirdető
Vedd fel a kapcsolatot a hirdetővel
+36 20 287 2
Hitelkalkulátor
Második évtől
197 920 Ft A 13. hónaptól
7,99%
Végig fix Futamidő: 20 év Banki visszahívás
Az OTP Bank munkatársai a neked megfelelő napszakban veszik fel veled a kapcsolatot. A becslés a hirdető által megadott adatokon alapul. A jelen tájékoztatás nem minősül ajánlattételnek és nem teljes körű, az egyes feltételek a hitelbírálat eredményétől függően változhatnak. Kérjük, a részletekről tájékozódj az OTP Bank fiókjaiban vagy az OTP Bank honlapján közzétett vonatkozó Üzletszabályzatokból és Hirdetményekből.
Vedd fel a kapcsolatot a hirdetővel
+36 20 287 2
Vedd fel a kapcsolatot a hirdetővel
+36 20 287 2
UI_KIT.CHARACTER_COUNTER__COMPONENT.ACTUAL_CHARACTER__SR_ONLY UI_KIT.CHARACTER_COUNTER__COMPONENT.MAXIMUM_CHARACTER__SR_ONLY
Hasonló eladó ingatlanok Valkón
Frissítve: 1 éve
1
49 millió Ft 326,7 ezer Ft/m²
Eladó családi ház, Valkó
Frissítve: 1 napja
16
49,9 millió Ft 419,3 ezer Ft/m²
Eladó családi ház, Valkó

Feltöltve: 1 éve
0
45 millió Ft 642,9 ezer Ft/m²
Eladó családi ház, Nagykőrös, Kölcsey utca

Fedezd fel a
hasonló házakat!Még további házak Pest megyében 45,99 M Ft körüli értékben
Tovább a hirdetésekhez Frissítve: 1 napja
19
45 millió Ft 652,2 ezer Ft/m²
Eladó családi ház, Cegléd

Frissítve: 1 hónapja
19
44,9 millió Ft 462,9 ezer Ft/m²
Eladó családi ház, Kisoroszi, 00
Frissítve: ma
11
49,9 millió Ft 924,1 ezer Ft/m²
Eladó ikerház, Táborfalva, Dobó Katica utca
