+16 fotó
Hirdetéskód: 8885984
Referenciaszám: M303738-5143089
Frissítve: ma
Budapest XXII. kerület eladó egyéb lakás 4 szobás: 85 millió Ft
85 millió Ft
739 130 Ft/m²
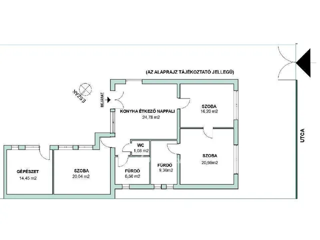
115 m²
4 szoba
földszint
Eladó Lakás, Budapest 22. ker.
FÖLDSZINTI LAKÁS KERTESHÁZBAN ELADÓ DUNATELEPEN
Eladásra kínálunk egy 115 m2-es amerikai konyhás nappali + három teljes értékű szobás, két fürdőszobás, külön wc-vel ellátott földszinti lakást.
A fűtést automata váltókapcsolóval ellátott gáz cirko-, vagy vegyestüzelésű kazán biztosítja egy külön helyiségben, mely háztartási helyiségként is használható.
Az épület szigetelt, a lakást 2005-ben teljeskörűen felújították, azóta is folyamatosan karbantartják.
A kert a három lakás közös használatában áll. Találunk benne kerti sütögetőt kemencével, bringa tárolót, kertibútor tárolót, fedett kiülőt, kis játszóteret mászókával. Igény szerint saját használatú kertrész is kialakítható, ez megegyezés kérdése. A használati megosztási szerződés elkészítése még folyamatban van, alakítható.
A parkolás a telken belül, és az utcán is lehetséges. Az utca zsákutca, átmenő forgalomtól mentes.
Az utca végén Duna part, Kis-Háros sziget, természetvédelmi terület, lovarda, kajak-kenu egyesület és SUP kölcsönzési lehetőség!
Az ingatlan közvetlen közelében helyezkedik el a Dunapart ABC, mely élelmiszer kiskereskedés. 800m-re pedig két élelmiszer áruházlánci egység is elérhető (ALDI, LIDL). Bevásárló központ két kilométerre található, ahol a közműszolgáltatók, telefontársaságok kirendeltségein kívül posta, gyógyszertár, fodrász, fitnesz-terem, benzinkút is megtalálható (CAMPONA Bevásárló Központ)
Háziorvosi rendelő, bölcsőde, óvoda, iskola, 1 km távolságra.
A közelben éjszakai és nappali BKV járatok, agglomeráció felé közlekedő távolsági buszok megállói, és vasútállomás is található, a part mentén kerékpárút vezet, melyen szintén elérhetjük a belvárost.
Az OTP Ingatlanpont teljeskörű ügyintézéssel áll az eladók és a vevők rendelkezésére! A választott ingatlan finanszírozásához kedvezményes hitel- és pénzügyi konstrukciókat kínálunk. Otthon Start hitel, CSOK Plusz teljeskörű ügyintézését vállaljuk. Az adásvétel teljes folyamatát végigkísérjük és ügyvédi közreműködést biztosítunk!
Amennyiben felkeltett érdeklődését az ingatlan, várom megtisztelő hívását akár hétvégén is!
Tulajdonságok
Egyéb lakás
Jó állapotú
Gázkazán
1970
A
Vedd fel a kapcsolatot a hirdetővel
+36 70 406 0
Hitelkalkulátor
Második évtől
365 801 Ft A 13. hónaptól
7,99%
Végig fix Futamidő: 20 év Banki visszahívás
Az OTP Bank munkatársai a neked megfelelő napszakban veszik fel veled a kapcsolatot.Hitelfelvétel esetén akár egy héttel rövidebb lehet az ügyintézés.
Ez az ingatlan a nálunk meglévő adatok alapján azonnali értékbecslésre alkalmas lehet.
A becslés a hirdető által megadott adatokon alapul. A jelen tájékoztatás nem minősül ajánlattételnek és nem teljes körű, az egyes feltételek a hitelbírálat eredményétől függően változhatnak. Kérjük, a részletekről tájékozódj az OTP Bank fiókjaiban vagy az OTP Bank honlapján közzétett vonatkozó Üzletszabályzatokból és Hirdetményekből.
Vedd fel a kapcsolatot a hirdetővel
+36 70 406 0
Vedd fel a kapcsolatot a hirdetővel
+36 70 406 0
UI_KIT.CHARACTER_COUNTER__COMPONENT.ACTUAL_CHARACTER__SR_ONLY UI_KIT.CHARACTER_COUNTER__COMPONENT.MAXIMUM_CHARACTER__SR_ONLY
Hasonló eladó ingatlanok Budapest XXII. kerületben
Feltöltve: 3 napja
7
76,5 M Ft 1 141 791 Ft/m²
Eladó lakás, Budapest XXII. kerület
Frissítve: 5 napja
8
88,5 M Ft 1 500 000 Ft/m²
Eladó lakás, Budapest XXII. kerület

Frissítve: 10 napja
16
85 M Ft 739 130 Ft/m²
Eladó lakás, Budapest XXII. kerület


Fedezd fel a
hasonló lakásokat!Még további lakások Budapest XXII. kerületben 85 M Ft körüli értékben
Tovább a hirdetésekhez Frissítve: 23 napja
19
85 M Ft 739 130 Ft/m²
Eladó lakás, Budapest XXII. kerület

Frissítve: 10 napja
20
85 M Ft 739 130 Ft/m²
Eladó lakás, Budapest XXII. kerület

Frissítve: 22 napja
19
85 M Ft 739 131 Ft/m²
Eladó lakás, Budapest XXII. kerület

