+15 fotó
Hirdetéskód: 8909088
Referenciaszám: M300114-5161247
Frissítve: ma
Kiskunhalas eladó egyéb lakás 2 szobás: 36,9 millió Ft
36,9 millió Ft
527,1 ezer Ft/m²
70 m²
2 szoba
földszint
Kiskunhalas,
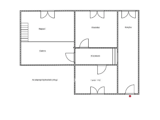
Bács-Kiskun vármegyében, Kiskunhalas belvárosában, két szobás 70 nm-es azonnal költözhető házrész eladó!
A vegyes falazatú, négy lakrészből álló ház osztatlan közös tulajdonú telken fekszik. Az eladásra kínált ingatlan egy belső lakrész, mely a közös udvarból, egy kerítéssel elválasztott, kedves hangulatú előkertből közelíthető meg.
A 2018-ban teljeskörűen felújított lakásban előszoba, konyha, közlekedő, hálógalériás nappali, szoba, fürdő és WC egy helyiségben kerültek kialakításra. Az otthon melegét gázkonvektorok biztosítják, a melegvizet villanybojler szolgáltatja. A felújítás során az elektromos vezetékek, vízvezeték ki lettek cserélve, az összes helyiség új járólapot, laminált padló burkolást kapott.
A lakrészhez saját udvari garázs és tároló mellett egy 250 nm-es kertrész is tartozik.
Az ingatlan infrastruktúrája nagyon jó, pár perc sétával elérhető a belváros, hivatalok, üzletek, iskola, óvoda, valamint a városi kórház és a városi fürdő is.
Kiváló választás lehet akár befektetési célú hasznosításra is.
Megvásárlásához az OTP finanszírozási megoldásait ajánlom, melynek intézésében szakszerű segítséggel állok a vevő rendelkezésére. Igény szerint ügyvédi közreműködést biztosítunk az adásvételi szerződés lebonyolításában, és a vételi folyamatot végig kísérjük a szerződés megkötésétől a bírtokba adásig.
Referencia szám: M300114
Tulajdonságok
Egyéb lakás
Jó állapotú
Gáz (konvektor)
1920
Nem adta meg a hirdető
Vedd fel a kapcsolatot a hirdetővel

+36 70 885 5
Hitelkalkulátor
Második évtől
158 801 Ft A 13. hónaptól
7,99%
Végig fix Futamidő: 20 év Banki visszahívás
Az OTP Bank munkatársai a neked megfelelő napszakban veszik fel veled a kapcsolatot. A becslés a hirdető által megadott adatokon alapul. A jelen tájékoztatás nem minősül ajánlattételnek és nem teljes körű, az egyes feltételek a hitelbírálat eredményétől függően változhatnak. Kérjük, a részletekről tájékozódj az OTP Bank fiókjaiban vagy az OTP Bank honlapján közzétett vonatkozó Üzletszabályzatokból és Hirdetményekből.
Vedd fel a kapcsolatot a hirdetővel

+36 70 885 5
Vedd fel a kapcsolatot a hirdetővel

+36 70 885 5
UI_KIT.CHARACTER_COUNTER__COMPONENT.ACTUAL_CHARACTER__SR_ONLY UI_KIT.CHARACTER_COUNTER__COMPONENT.MAXIMUM_CHARACTER__SR_ONLY
Hasonló eladó ingatlanok Kiskunhalason
Frissítve: 22 napja
20
36,9 millió Ft 527,1 ezer Ft/m²
Eladó lakás, Kiskunhalas

Frissítve: ma
20
36,9 millió Ft 527,1 ezer Ft/m²
Eladó lakás, Kiskunhalas

Frissítve: 5 hónapja
10
38,99 millió Ft 282,5 ezer Ft/m²
Eladó lakás, Kiskunhalas

Fedezd fel a
hasonló lakásokat!Még további lakások Bács-Kiskun megyében 36,9 M Ft körüli értékben
Tovább a hirdetésekhez Feltöltve: 1 hónapja
12
34,99 millió Ft 530,2 ezer Ft/m²
Eladó lakás, Kiskunhalas
Frissítve: 4 napja
20
37,9 millió Ft 574,2 ezer Ft/m²
Eladó lakás, Kiskunhalas

Feltöltve: 27 napja
14
34,9 millió Ft 581,7 ezer Ft/m²
Eladó lakás, Kiskunhalas
