+17 fotó
Hirdetéskód: 8883272
Referenciaszám: 1083603
Feltöltve: ma
Budapest XXII. kerület eladó ikerház 4+1 fél szobás: 144,9 millió Ft
144,9 millió Ft
999 310 Ft/m²
145 m²
4+1 fél szoba
Tökéletes ingatlan egy család számára!
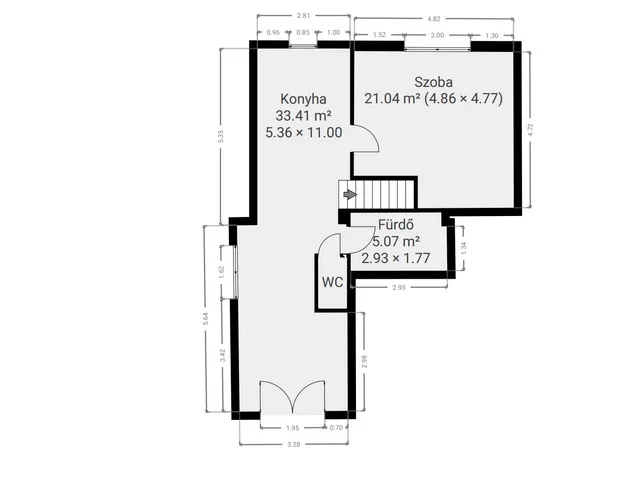
Az ingatlanba belépve a tágas előszobába érkezünk, mely mellett jobb kéz felé található a gyönyörűen kialakított zuhanyzós fürdőszoba, mellette az elszeparált toalett.
Továbbhaladva szemben található a munkapulttal kialakított, gépesített konyha, tőle jobbra található az első hálószobánk.
Emeletre érve egy hatalmas térrel kerülünk szemben, melytől jobbra a második hálószobánk kapott helyet.
A második fürdőszobánk az emeleten pedig egy kádas fürdőszoba.
Emeleten helyet kapott egy nagy méretű erkély.
Az ikerház 2025-ben készült el, friss ropogós!
Azoknak ajánlom, akik otthonként tudják elképzelni ezt a remek ingatlant!
Tulajdonságok
Ikerház
Felújított
2025
Nem adta meg a hirdető
Vedd fel a kapcsolatot a hirdetővel
+36 30 471 2
Hitelkalkulátor
Második évtől
623 584 Ft A 13. hónaptól
7,99%
Végig fix Futamidő: 20 év Banki visszahívás
Az OTP Bank munkatársai a neked megfelelő napszakban veszik fel veled a kapcsolatot. A becslés a hirdető által megadott adatokon alapul. A jelen tájékoztatás nem minősül ajánlattételnek és nem teljes körű, az egyes feltételek a hitelbírálat eredményétől függően változhatnak. Kérjük, a részletekről tájékozódj az OTP Bank fiókjaiban vagy az OTP Bank honlapján közzétett vonatkozó Üzletszabályzatokból és Hirdetményekből.
Vedd fel a kapcsolatot a hirdetővel
+36 30 471 2
Vedd fel a kapcsolatot a hirdetővel
+36 30 471 2
UI_KIT.CHARACTER_COUNTER__COMPONENT.ACTUAL_CHARACTER__SR_ONLY UI_KIT.CHARACTER_COUNTER__COMPONENT.MAXIMUM_CHARACTER__SR_ONLY
Hasonló eladó ingatlanok Budapest XXII. kerületben
Frissítve: 2 napja
20
149 M Ft 1 693 182 Ft/m²
Eladó családi ház, Budapest XXII. kerület, Máriás utca

Frissítve: 14 napja
20
149,9 M Ft 999 333 Ft/m²
Eladó családi ház, Budapest XXII. kerület

Frissítve: 14 napja
20
137 M Ft 913 333 Ft/m²
Eladó családi ház, Budapest XXII. kerület


Fedezd fel a
hasonló házakat!Még további házak Budapest XXII. kerületben 144,9 M Ft körüli értékben
Tovább a hirdetésekhez Frissítve: 7 napja
16
137 M Ft 913 333 Ft/m²
Eladó családi ház, Budapest XXII. kerület

Frissítve: 20 napja
19
137 M Ft 913 333 Ft/m²
Eladó családi ház, Budapest XXII. kerület

Frissítve: 7 napja
16
137 M Ft 913 333 Ft/m²
Eladó családi ház, Budapest XXII. kerület

