+11 fotó
Hirdetéskód: 8721435
Referenciaszám: 4649
Frissítve: 10 napja
Csörög eladó ikerház 4 szobás: 89,9 millió Ft
89,9 millió Ft
832 407 Ft/m²
108 m²
409 m²
4 szoba
4649: Csörög új parcellázású részén épülő ikerház mindkét fele eladó!
Csörög új parcellázású részén épülő ikerház mindkét fele eladó!
CÉGES ÉPÍTKEZÉS, a 2024-től aktuális állami támogatások valamint kedvezményes, kamattámogatott hitelek felvehetőek – akár a 3%-os OTTHON START hitel, CSOK PLUS, babaváró is igényelhető, az ügyintézésben díjmentesen segítünk!
Az építő munkájára jellemző a megbízhatóság és igényesség, leinformálható, referencia házai megtekinthetők.
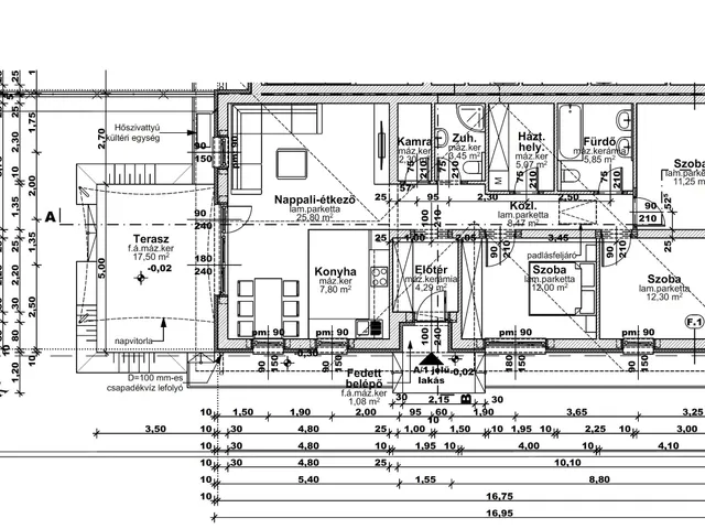
A földszintes iker-ház 819 nm-es telekre épül - a lakások elrendezése megegyezik: nettó lakótér 98,58 nm + 18 nm terasz, nappali + 3 szoba, dupla komfortos elrendezéssel, zárt udvari gépkocsi beállóval, lakásonként 409 nm-es telekrészekkel.
Rövid műszaki tartalom:
- Porotherm 30-as teherhordó falak, 10 cm-es grafitos, dryvit szigeteléssel, Porotherm 10-es belső válaszfalakkal, E gerendás vasbetonfödémmel, Leier sötétbarna tetőcseréppel
- külső homlokzati nyílászárók: Fenstherm Future, 76 mm-es, 5 légkamrás, fehérszínű, műanyag szerkezetű ablakok, 3 rétegű üvegezéssel. Párkányok: belül fehér műanyag, kívül aglomerát, kőfedést kapnak.
Fűtés-hűtés: egyedi, hőszivattyús fűtés-hűtés rendszerrel kerül kialakításra, PANASONIC AQUAREA 12 KW-os T-CAP hőszivattyúval, minden helységben padlófűtéssel.
A fürdőszobában törölköző szárító radiátor is felszerelésre kerül.
A hűtésre 4 db fan coil-on keresztül lesz lehetőség, melyhez a 3 szobában és a nappaliban az előkészítés a vételár részét képezi.
További vállalások: internet-, riasztó-, kaputelefon előkészítése, térkövezett járda és autóbeálló.
Parkolás: zárt udvari gépkocsi beállón kerül kialakításra
Burkolatok, szaniterek választhatók, a belső műszaki tartalomban vállalt árig a vételár részét képezve.
1. lakás ára: 91.990.000.- Ft
2. lakás ára: 89.990.000.- Ft
Azonosító: 4649
Tulajdonságok
Ikerház
1
Új építésű
Hőszivattyú
2025
18 m²
Nem adta meg a hirdető
Vedd fel a kapcsolatot a hirdetővel
+36 70 418 1
Hitelkalkulátor
Második évtől
386 889 Ft A 13. hónaptól
7,99% 8,49%
Végig fix Futamidő: 20 év Banki visszahívás
Az OTP Bank munkatársai a neked megfelelő napszakban veszik fel veled a kapcsolatot. A becslés a hirdető által megadott adatokon alapul. A jelen tájékoztatás nem minősül ajánlattételnek és nem teljes körű, az egyes feltételek a hitelbírálat eredményétől függően változhatnak. Kérjük, a részletekről tájékozódj az OTP Bank fiókjaiban vagy az OTP Bank honlapján közzétett vonatkozó Üzletszabályzatokból és Hirdetményekből.
Vedd fel a kapcsolatot a hirdetővel
+36 70 418 1
Vedd fel a kapcsolatot a hirdetővel
+36 70 418 1
UI_KIT.CHARACTER_COUNTER__COMPONENT.REMAINING_SPACE__SR_ONLYUI_KIT.CHARACTER_COUNTER__COMPONENT.MAXIMUM_CHARACTER__SR_ONLY
Hasonló eladó ingatlanok Csörögön
Frissítve: 2 napja
20
89,9 M Ft 899 000 Ft/m²
Eladó családi ház, Csörög
Feltöltve: 3 hónapja
18
83,5 M Ft 745 536 Ft/m²
Eladó családi ház, Csörög
Frissítve: 15 napja
3
85 M Ft 691 057 Ft/m²
Eladó családi ház, Csörög, Munkácsy Mihály utca

Fedezd fel a
hasonló házakat!Még további házak Pest megyében 89,9 M Ft körüli értékben
Tovább a hirdetésekhez Frissítve: 22 napja
5
90,9 M Ft 998 901 Ft/m²
Eladó ikerház, Csörög
Frissítve: 22 napja
7
90,9 M Ft 909 000 Ft/m²
Eladó ikerház, Csörög
Feltöltve: 1 hónapja
1
83,5 M Ft 732 456 Ft/m²
Eladó családi ház, Csörög

Töltsd fel hirdetésed ingyenesen!
Egyszerű