+17 fotó
Hirdetéskód: 8940343
Referenciaszám: HZ089054-5181604
Feltöltve: 7 napja
Kakucs eladó ikerház 4 szobás: 96,9 millió Ft
96,9 millió Ft
1 076 667 Ft/m²
90 m²
450 m²
4 szoba
Eladó ház, Kakucs
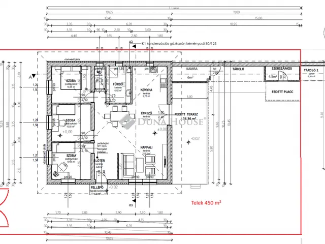
ELADÓ 3 ÉVES TÁROLÓKAPCSOLATOS IKERHÁZFÉL KAKUCSON, KÖZÖS FALAK NÉLKÜL!Eladásra kínálunk Kakucson egy 2023-ban elkészült 90 m2 hasznos alapterületű ikerházfelet 450 m2-es saját telekrésszel.Helyiségeket tekintve az ingatlan rendelkezik 3 különnyíló hálószobával, egy amerikai-konyhás nappalival és étkezővel, fürdővel és külön WC-vel és egy előtérrel.A hasznos alapterületen kívül egy 24 m2-es fedett terasz, 6 m2-es kamra és egy 4,5 m2-es tároló is kialakításra került.ÉPÜLET:Az épület beton alapra téglából, fa födémmel és tetőszerkezettel, betoncserép fedéssel épült.10 cm homlokzati, 10 cm lépésálló lábazati- és 30 cm-es ásványgyapot födémszigeteléssel rendelkezik.Prémium nyílászárók: 3 rétegű üvegezéssel ellátott, 6 kamrás profilok a kiváló hang - és hővédelemért.Fűtését ARISTON kondenzációs kazán biztosítja padlófűtéses és radiátoros hőleadással.EXTRÁK:- WIFI-s hővisszanyerős szellőztető rendszer, hűtő-fűtő klíma és egy törölközőszárító- 3 fázisú elektromos kiállás napelemes rendszer inverterének fogadására- Ethernet- és koaxiális csatlakozás minden szobában- Kamerás kaputelefon és kamerarendszer- Elektromos kapu távnyitással és rádióvezérlésű autókapuKERT:- 450 m2 alapterületű saját, körbekerített kertrész- 48 m²-es murvázott gépkocsibeálló több autó parkolására is- 2350 liter vízgyűjtő kapacitás (1000 literes tartály szivattyúval)- magaságyások, üvegházAz ingatlan saját helyrajziszámmal rendelkezik, jogilag teljesen külön funkcionál a szomszédos ikerházféltől.ÖRÖMMEL ÁLLOK RENDELKEZÉSÉRE A DUNA HOUSE KÍNÁLATÁBAN MEGTALÁLHATÓ ÖSSZES INGATLANNAL KAPCSOLATBAN.HÉTVÉGÉN IS VÁROM MEGTISZTELŐ HÍVÁSÁT!
Tulajdonságok
Ikerház
Újszerű
Gázkazán
2022
B
Vedd fel a kapcsolatot a hirdetővel
+36 1 690 17
Hitelkalkulátor
Második évtől
417 013 Ft A 13. hónaptól
7,99%
Végig fix Futamidő: 20 év Banki visszahívás
Az OTP Bank munkatársai a neked megfelelő napszakban veszik fel veled a kapcsolatot. A becslés a hirdető által megadott adatokon alapul. A jelen tájékoztatás nem minősül ajánlattételnek és nem teljes körű, az egyes feltételek a hitelbírálat eredményétől függően változhatnak. Kérjük, a részletekről tájékozódj az OTP Bank fiókjaiban vagy az OTP Bank honlapján közzétett vonatkozó Üzletszabályzatokból és Hirdetményekből.
Vedd fel a kapcsolatot a hirdetővel
+36 1 690 17
Vedd fel a kapcsolatot a hirdetővel
+36 1 690 17
UI_KIT.CHARACTER_COUNTER__COMPONENT.ACTUAL_CHARACTER__SR_ONLY UI_KIT.CHARACTER_COUNTER__COMPONENT.MAXIMUM_CHARACTER__SR_ONLY
Hasonló eladó ingatlanok Kakucson
Frissítve: 8 napja
20
89,9 M Ft 987 912 Ft/m²
Eladó ikerház, Kakucs

Frissítve: 8 napja
16
89,9 M Ft 987 912 Ft/m²
Eladó ikerház, Kakucs

Frissítve: 8 napja
9
89,9 M Ft 995 460 Ft/m²
Eladó ikerház, Kakucs


Fedezd fel a
hasonló házakat!Még további házak Kakucson 96,9 M Ft körüli értékben
Tovább a hirdetésekhez Frissítve: 8 napja
10
89,9 M Ft 995 460 Ft/m²
Eladó ikerház, Kakucs

Frissítve: 8 napja
12
89,9 M Ft 995 460 Ft/m²
Eladó ikerház, Kakucs

Frissítve: 1 hónapja
16
89,9 M Ft 987 912 Ft/m²
Eladó ikerház, Kakucs
