

+18 fotó
Hirdetéskód: 8726805
Referenciaszám: M312521-5048808
Feltöltve: 4 napja
Budapest VIII. kerület eladó téglalakás 3+1 fél szobás: 149,9 millió Ft
149,9 millió Ft
1 529 592 Ft/m²
98 m²
3+1 fél szoba
1. emelet
Eladó Lakás, Budapest 8. ker.
Belvárosi különlegesség, otthon és befektetés egyben
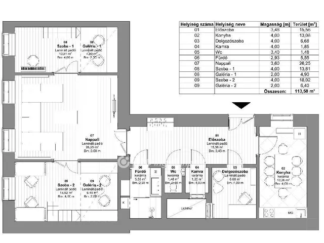
A VII. és VIII. kerület határán, csendes mellékutcában található ez a napfényes, első emeleti, 113 m2-es lakás, amelyet építészcsalád tervei alapján, kompromisszumok nélkül újítottak fel. A letisztult, modern stílus és az egyedi részletmegoldások harmóniája olyan otthont eredményezett, amely valóban azonnal költözhető, és hosszú távon is értékálló befektetést jelent.
A lakás teljes körű, dokumentált felújításon esett át: minden közmű, burkolat és nyílászáró megújult, a fűtést gazdaságos kondenzációs gázkazán, a hűtést álmennyezetbe rejtett, WiFi-ről vezérelhető klíma biztosítja. Az alacsony rezsiköltségek (átlagosan villany 6.000 Ft, gáz 7.000 Ft, víz 4.000 Ft, közös költség 34.000 Ft) kényelmes fenntarthatóságot kínálnak a belváros szívében.
A vételár része a modern, beépített Gorenje konyhai gépekkel felszerelt konyha, valamint az egyedileg tervezett bútorok, lámpák és kanapé, így az új tulajdonos valóban csak a személyes tárgyait kell, hogy hozza. A további berendezési tárgyak megegyezés szerint elérhetők.
A környék kivételes: néhány perc sétára találhatók az M2 és M4 metróvonalak, a 4-6-os villamos, valamint több busz- és troli járat. A Keleti pályaudvar 6 perc alatt elérhető, így a város bármely pontja gyorsan megközelíthető. A II. János Pál Pápa tér közelsége sportolásra, kikapcsolódásra kínál lehetőséget, míg a környék üzletei, színházai és bevásárlóközpontjai a mindennapok kényelmét szolgálják.
A rendezett, liftes társasház hangulatos, zöld belső udvarral, erős közös képviselettel és stabil pénzügyi háttérrel rendelkezik, ami szintén hozzájárul az ingatlan biztonságos értéknövekedéséhez.
Ez a lakás nemcsak egy stílusos és tágas otthon, hanem egy megbízható befektetés is, amely rövid határidővel birtokba vehető.
Amennyiben az ingatlan felkeltette az érdeklődését, kérem, vegye fel velem a kapcsolatot!
Az adásvételi szerződés megkötéséhez igény szerint megbízható ügyvédi és hitelügyintézői közreműködést biztosítunk, és segítséget nyújtunk az adásvételhez kapcsolódó ügyek intézéséhez.
Tulajdonságok
Téglalakás
Felújított
Gázkazán
1900
Nem adta meg a hirdető
Vedd fel a kapcsolatot a hirdetővel
Marton Luca Karolina OTPip - Budapest IX. kerület Üllői út 21 - OTP Ingatlanpont Iroda Az iroda összes hirdetése
+36 30 755 8
Hitelkalkulátor
Második évtől
645 101 Ft A 13. hónaptól
7,99%
Végig fix Futamidő: 20 év Banki visszahívás
Az OTP Bank munkatársai a neked megfelelő napszakban veszik fel veled a kapcsolatot.Hitelfelvétel esetén akár egy héttel rövidebb lehet az ügyintézés.
Ez az ingatlan a nálunk meglévő adatok alapján azonnali értékbecslésre alkalmas lehet.
A becslés a hirdető által megadott adatokon alapul. A jelen tájékoztatás nem minősül ajánlattételnek és nem teljes körű, az egyes feltételek a hitelbírálat eredményétől függően változhatnak. Kérjük, a részletekről tájékozódj az OTP Bank fiókjaiban vagy az OTP Bank honlapján közzétett vonatkozó Üzletszabályzatokból és Hirdetményekből.
Vedd fel a kapcsolatot a hirdetővel
Marton Luca Karolina OTPip - Budapest IX. kerület Üllői út 21 - OTP Ingatlanpont Iroda Az iroda összes hirdetése
+36 30 755 8
Vedd fel a kapcsolatot a hirdetővel
Marton Luca Karolina OTPip - Budapest IX. kerület Üllői út 21 - OTP Ingatlanpont Iroda Az iroda összes hirdetése
+36 30 755 8
UI_KIT.CHARACTER_COUNTER__COMPONENT.REMAINING_SPACE__SR_ONLYUI_KIT.CHARACTER_COUNTER__COMPONENT.MAXIMUM_CHARACTER__SR_ONLY
Hasonló eladó ingatlanok Józsefváros városrészben
Frissítve: 10 napja

6
149,9 M Ft 1 555 625 Ft/m²
Eladó lakás, Budapest VIII. kerület, Józsefváros

Frissítve: 2 hónapja

20
156 M Ft 1 380 531 Ft/m²
Eladó lakás, Budapest VIII. kerület, Józsefváros, Rákóczi 75
Frissítve: 8 napja

13
149,9 M Ft 1 611 828 Ft/m²
Eladó lakás, Budapest VIII. kerület, Józsefváros

Fedezd fel a
hasonló lakásokat!Még további lakások Budapest VIII. kerületben 149,9 M Ft körüli értékben
Tovább a hirdetésekhez Feltöltve: ma

20
139 M Ft 952 055 Ft/m²
Eladó lakás, Budapest VIII. kerület, Józsefváros

Frissítve: 4 hónapja

1
140 M Ft 992 908 Ft/m²
Eladó lakás, Budapest VIII. kerület, Palotanegyed
Frissítve: 10 napja

15
140,15 M Ft 1 610 943 Ft/m²
Eladó lakás, Budapest VIII. kerület


Töltsd fel hirdetésed ingyenesen!
Egyszerű