+7 fotó
Hirdetéskód: 8852760
Referenciaszám: PR021988/LK/27293-5125078
Frissítve: ma
Budapest XIX. kerület eladó téglalakás 2 szobás: 76,9 millió Ft
76,9 millió Ft
1,4 millió Ft/m²
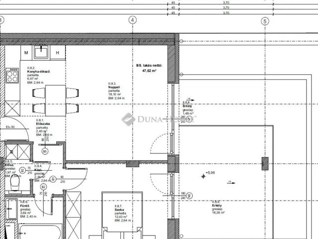
55 m²
2 szoba
3. emelet
Eladó lakás, Budapest 19. ker.
Budapest 19. kerületében, a KÖKI Terminál szomszédságában új építésű társasházi lakások hőszivattyús fűtéssel, magas műszaki tartalommal, kivételes lokációval!
Befektetésnek is kitűnő lehetőség!!
Műszaki adatok:
- főfal: 30-as főfalak
- válaszfal: Porotherm 10 N+F válaszfallap
- energiatakarékos hőszivattyús rendszer padlófűtéssel (lakáson belül helyiségenként egyedi mérővel)
- a melegvizet hőszivattyú állítja elő a tárolásról pedig HMV gondoskodik
- 20 cm Rockwool kőzetgyapot homlokzati szigetelés
- hűtés magas oldalfali fan-coilokkal (hőszivattyú) felár ellenében
- 3 üvegrétegű, 6 kamrás hőszigetelt, műanyag nyílászárók
- szaniterek, meleg- és hidegburkolatok, valamint beltéri ajtók még választhatók
- gépkocsibeálló igény szerint vásárolható - 4 M Ft / db
- Lift (13 személyes, 1000 kg teherbírású személyfelvonó)
Már 10%- al foglalható, rugalmas fizetési ütemezéssel!
Az építtető cég, így minden állami támogatás igénybe vehető! Megbízható kivitelező több, környéken átadott referenciával!
Várható átadás: 2026. IV. negyedév
Teljes műszaki leírás, dokumentáció megtekinthető irodánkban!
Zöldi Norbert +36709450148
Referencia szám: PR021988/LK/27293
Tulajdonságok
Téglalakás
Új építésű
Hőszivattyú
2026
A+
Vedd fel a kapcsolatot a hirdetővel

+36 1 690 02
Hitelkalkulátor
Második évtől
330 943 Ft A 13. hónaptól
7,99% 8,49%
Végig fix Futamidő: 20 év Banki visszahívás
Az OTP Bank munkatársai a neked megfelelő napszakban veszik fel veled a kapcsolatot.Hitelfelvétel esetén akár egy héttel rövidebb lehet az ügyintézés.
Ez az ingatlan a nálunk meglévő adatok alapján azonnali értékbecslésre alkalmas lehet.
A becslés a hirdető által megadott adatokon alapul. A jelen tájékoztatás nem minősül ajánlattételnek és nem teljes körű, az egyes feltételek a hitelbírálat eredményétől függően változhatnak. Kérjük, a részletekről tájékozódj az OTP Bank fiókjaiban vagy az OTP Bank honlapján közzétett vonatkozó Üzletszabályzatokból és Hirdetményekből.
Vedd fel a kapcsolatot a hirdetővel

+36 1 690 02
Vedd fel a kapcsolatot a hirdetővel

+36 1 690 02
UI_KIT.CHARACTER_COUNTER__COMPONENT.ACTUAL_CHARACTER__SR_ONLY UI_KIT.CHARACTER_COUNTER__COMPONENT.MAXIMUM_CHARACTER__SR_ONLY
Hasonló eladó ingatlanok Budapest XIX. kerületben
Frissítve: 4 napja
20
82,44 millió Ft 1,68 millió Ft/m²
Eladó lakás, Budapest XIX. kerület

Frissítve: 4 napja
20
82,15 millió Ft 1,68 millió Ft/m²
Eladó lakás, Budapest XIX. kerület

Frissítve: 4 napja
20
78,05 millió Ft 1,59 millió Ft/m²
Eladó lakás, Budapest XIX. kerület


Fedezd fel a
hasonló lakásokat!Még további lakások Budapest XIX. kerületben 76,9 M Ft körüli értékben
Tovább a hirdetésekhez Frissítve: 4 napja
20
74,19 millió Ft 1,69 millió Ft/m²
Eladó lakás, Budapest XIX. kerület

Frissítve: 15 napja
20
70,83 millió Ft 1,77 millió Ft/m²
Eladó lakás, Budapest XIX. kerület

Frissítve: 4 napja
20
82,12 millió Ft 1,68 millió Ft/m²
Eladó lakás, Budapest XIX. kerület

