+1 fotó
Zenga
Premier
Hirdetéskód: 8912091
Referenciaszám: LK066526
Feltöltve: ma
Budapest XIX. kerület eladó téglalakás 1 szobás: 53,4 millió Ft
53,4 millió Ft
1 570 588 Ft/m² *
* A m² árat a hirdető adta meg.
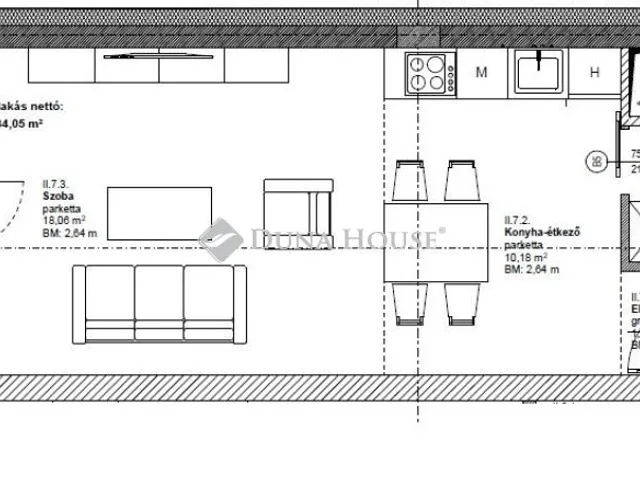
34 m²
1 szoba
2. emelet

Friss hirdetések, amiket nem találsz meg más ingatlankereső portálon.
Fedezd fel elsőként a Zenga Premier címkés eladó ingatlanokat! További részletek A Duna House, OTP Ingatlanpont, Otthon Centrum és további hálózatok új, kizárólagos hirdetéseinek nagy részét a zenga.hu és koltozzbe.hu ingatlankeresőn láthatod legelőször, és a feltöltéstől két hétig nem érhetők el más ingatlankeresőn!
Leírás
Budapest 19. kerületében, a KÖKI Terminál szomszédságában új építésű társasházi lakások hőszivattyús fűtéssel, magas műszaki tartalommal, kivételes lokációval!
Befektetésnek is kitűnő lehetőség!!
Műszaki adatok:
- főfal: 30-as főfalak
- válaszfal: Porotherm 10 N+F válaszfallap
- energiatakarékos hőszivattyús rendszer padlófűtéssel (lakáson belül helyiségenként egyedi mérővel)
- a melegvizet hőszivattyú állítja elő a tárolásról pedig HMV gondoskodik
- 20 cm Rockwool kőzetgyapot homlokzati szigetelés
- hűtés magas oldalfali fan-coilokkal (hőszivattyú) felár ellenében
- 3 üvegrétegű, 6 kamrás hőszigetelt, műanyag nyílászárók
- szaniterek, meleg- és hidegburkolatok, valamint beltéri ajtók még választhatók
- gépkocsibeálló igény szerint vásárolható - 5 M Ft / db
- Lift (13 személyes, 1000 kg teherbírású személyfelvonó)
Már 20%- al foglalható, építési ütemnek megfelelő finanszírozással!
Az építtető cég, így minden állami támogatás igénybe vehető!
Várható átadás: 2026. IV. negyedév
Teljes műszaki leírás, dokumentáció megtekinthető irodánkban!
Tulajdonságok
Téglalakás
5
Újszerű
Hőszivattyú
2026
3,1 m²
Nem adta meg a hirdető
Vedd fel a kapcsolatot a hirdetővel
+36 1 690 02
Hitelkalkulátor
Második évtől
229 809 Ft A 13. hónaptól
7,99%
Végig fix Futamidő: 20 év Banki visszahívás
Az OTP Bank munkatársai a neked megfelelő napszakban veszik fel veled a kapcsolatot.Hitelfelvétel esetén akár egy héttel rövidebb lehet az ügyintézés.
Ez az ingatlan a nálunk meglévő adatok alapján azonnali értékbecslésre alkalmas lehet.
A becslés a hirdető által megadott adatokon alapul. A jelen tájékoztatás nem minősül ajánlattételnek és nem teljes körű, az egyes feltételek a hitelbírálat eredményétől függően változhatnak. Kérjük, a részletekről tájékozódj az OTP Bank fiókjaiban vagy az OTP Bank honlapján közzétett vonatkozó Üzletszabályzatokból és Hirdetményekből.
Vedd fel a kapcsolatot a hirdetővel
+36 1 690 02
Vedd fel a kapcsolatot a hirdetővel
+36 1 690 02
UI_KIT.CHARACTER_COUNTER__COMPONENT.ACTUAL_CHARACTER__SR_ONLY UI_KIT.CHARACTER_COUNTER__COMPONENT.MAXIMUM_CHARACTER__SR_ONLY
Hasonló eladó ingatlanok Budapest XIX. kerületben
Frissítve: 6 napja
20
55,11 M Ft 1 836 964 Ft/m²
Eladó lakás, Budapest XIX. kerület

Frissítve: 6 napja
20
56,63 M Ft 1 665 618 Ft/m²
Eladó lakás, Budapest XIX. kerület

Frissítve: 6 napja
20
55,11 M Ft 1 836 964 Ft/m²
Eladó lakás, Budapest XIX. kerület


Fedezd fel a
hasonló lakásokat!Még további lakások Budapest XIX. kerületben 53,4 M Ft körüli értékben
Tovább a hirdetésekhez Frissítve: 3 napja
20
58,2 M Ft 1 711 765 Ft/m²
Eladó lakás, Budapest XIX. kerület

Frissítve: 3 napja
20
51,5 M Ft 1 775 862 Ft/m²
Eladó lakás, Budapest XIX. kerület

Frissítve: 3 napja
20
58,2 M Ft 1 711 765 Ft/m²
Eladó lakás, Budapest XIX. kerület


