+4 fotó
Zenga
Premier
Hirdetéskód: 8793227
Referenciaszám: U0048988
Feltöltve: ma
Budapest XV. kerület eladó téglalakás 3 szobás: 99,5 millió Ft
99,5 millió Ft
1 326 667 Ft/m²
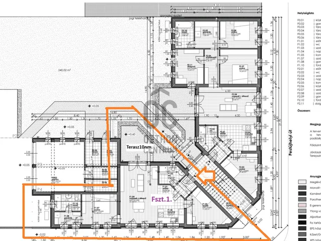
75 m²
3 szoba
földszint

Friss hirdetések, amiket nem találsz meg más ingatlankereső portálon.
Fedezd fel elsőként a Zenga Premier címkés eladó ingatlanokat! További részletek A Duna House, OTP Ingatlanpont, Otthon Centrum és további hálózatok új, kizárólagos hirdetéseinek nagy részét a zenga.hu és koltozzbe.hu ingatlankeresőn láthatod legelőször, és a feltöltéstől két hétig nem érhetők el más ingatlankeresőn!
Fedezze fel új otthonát Pestújhely szívében – 3 szobás modern lakás, ahol a kényelem találkozik a stílussal!
Ez az ingatlan egy igazi ritkaság Pestújhely legjobb részén: újépítésű, modern otthon egy mindössze 4 lakásos társasház földszintjén, ahol a nyugalmat közös kerthelyiség is kiegészíti. A 75 nm-es, háromszobás, prémium kivitelezésű lakás világos, tágas tereket és jól átgondolt kialakítást kínál.
A nappaliból saját, kertre néző terasz nyílik, ami kellemes plusz teret ad reggelihez, pihenéshez vagy baráti összejövetelekhez. A modern hőszivattyús fűtés és a klíma egész évben kényelmes hőmérsékletet biztosítanak, miközben az energiahatékonyság is kiemelkedő.
A projekt jelenleg épül, az átadás 2026 utolsó negyedévében várható, így bőven van idő megtervezni a költözést és személyre szabni a belső tereket. A lakás hitelre is megvásárolható, ami különösen jó lehetőség fiatal felnőttek vagy első lakás vásárlók számára.
A környék ellátottsága kiváló: üzletek, kávézók, éttermek pár perc sétára találhatók. Zugló közelsége és a jó tömegközlekedés miatt a belváros gyorsan elérhető, így ideális választás azoknak, akik a városi pörgést és a kertvárosi nyugalmat szeretnék ötvözni.
További nagy előny, hogy a lakáshoz garázs vagy autóbeálló vásárolható, és külön tároló is elérhető — értékes extrák egy újépítésű, kis lakásszámú társasházban.
Ezek a kiegészítők különösen értékesek egy kis lakásszámú, újépítésű társasházban, hiszen hosszú távon is jelentős kényelmet és értéket biztosítanak.
Az ingatlan ár-érték arányban kiemelkedő lehetőség, modern, biztonságos, hosszú távon is értékálló otthon.
Ha szeretnél többet megtudni vagy belenéznél a tervekbe, szólj bátran — szívesen segítek mindenben!
Tulajdonságok
Téglalakás
Új építésű
Hőszivattyú
2026
10 m²
Nem adta meg a hirdető
Vedd fel a kapcsolatot a hirdetővel
+36 70 465 6
Hitelkalkulátor
Második évtől
428 203 Ft A 13. hónaptól
7,99% 8,49%
Végig fix Futamidő: 20 év Banki visszahívás
Az OTP Bank munkatársai a neked megfelelő napszakban veszik fel veled a kapcsolatot.Hitelfelvétel esetén akár egy héttel rövidebb lehet az ügyintézés.
Ez az ingatlan a nálunk meglévő adatok alapján azonnali értékbecslésre alkalmas lehet.
A becslés a hirdető által megadott adatokon alapul. A jelen tájékoztatás nem minősül ajánlattételnek és nem teljes körű, az egyes feltételek a hitelbírálat eredményétől függően változhatnak. Kérjük, a részletekről tájékozódj az OTP Bank fiókjaiban vagy az OTP Bank honlapján közzétett vonatkozó Üzletszabályzatokból és Hirdetményekből.
Vedd fel a kapcsolatot a hirdetővel
+36 70 465 6
Vedd fel a kapcsolatot a hirdetővel
+36 70 465 6
UI_KIT.CHARACTER_COUNTER__COMPONENT.REMAINING_SPACE__SR_ONLYUI_KIT.CHARACTER_COUNTER__COMPONENT.MAXIMUM_CHARACTER__SR_ONLY
Hasonló eladó ingatlanok Pestújhely városrészben
Frissítve: 21 napja
8
93,39 M Ft 1 393 910 Ft/m²
Eladó lakás, Budapest XV. kerület

Frissítve: 21 napja
8
93,73 M Ft 1 378 382 Ft/m²
Eladó lakás, Budapest XV. kerület

Frissítve: 21 napja
8
96,66 M Ft 1 487 000 Ft/m²
Eladó lakás, Budapest XV. kerület


Fedezd fel a
hasonló lakásokat!Még további lakások Budapest XV. kerületben 99,5 M Ft körüli értékben
Tovább a hirdetésekhez Frissítve: 21 napja
8
96,65 M Ft 1 486 900 Ft/m²
Eladó lakás, Budapest XV. kerület

Frissítve: 6 hónapja
1
90,93 M Ft 1 280 690 Ft/m²
Eladó lakás, Budapest XV. kerület, Újpalota
Frissítve: 19 napja
20
Novus Liget Lakópark
104,89 M Ft 1 119 592 Ft/m²
Eladó lakás, Budapest XV. kerület, Kékszilva utca 2.

Töltsd fel hirdetésed ingyenesen!
Egyszerű
