+7 fotó
Hirdetéskód: 8764894
Referenciaszám: 5054
Frissítve: 1 hónapja
Érd eladó téglalakás 3 szobás: 76,99 millió Ft
76,99 millió Ft
1 184 462 Ft/m²
65 m²
3 szoba
1. emelet
Kód: 5054TSZ Újszerű állapot, N+2 szoba, nagy erkély, klíma, konyhabútor gépekkel
Hivatkozzon erre, kód: 5054TSZ
- ÚJSZERŰ ÁLLAPOT
- KIVÁLÓ INFRASTRUKTÚRA
- TÁRSASHÁZI ALAPÍTÓ OKIRAT (önálló albetét)
- NAPPALI + 2 SZOBA, NAGY ERKÉLY, 1 GK-S UDVARI BEÁLLÓ
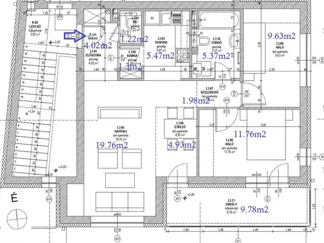
Érd Városközpontban kiváló infrastruktúránál 2019-ben épült társasházban eladó egy újszerű állapotban lévő nappali + 2 szobás, összesen 65.44m2-es (+ erkély), I. emeleti lakás 1 gk-s udvari beállóval.
A lakás felosztása a következő (65.44m2 + 9.78m2 erkély): előszoba (4.02m2), wc (1.22m2), kamra (1.30m2), konyha (5.47m2) – étkező (4.93m2) – nappali (19.76m2), közlekedő (1.98m2), fürdőszoba + wc (5.37m2), szoba (11.76m2), szoba (9.63m2).
Szerkezeti leírás: A társasház 2019-ben épült beton alapra. Porotherm N+F 30-as tégla főfalak + 15cm dryvit szigetelés. 10-es tégla válaszfalak. A külső nyílászárók műanyag szerkezetűek, 3 rétegű fokozott hőszigetelésű üvegezéssel ellátva, beépített redőnyökkel és szúnyoghálókkal felszerelve. A belső nyílászárók papírrácsbetétes ajtók. Beton födém. Cserép fedésű tető.
Közművek: víz, villany, gáz, csatorna bekötve, önálló mérőórákkal ellátva.
Fűtés, meleg víz ellátás: A lakás fűtését kondenzációs gázcirkó biztosítja padlófűtésen keresztül. A meleg víz ellátás szintén a cirkóról üzemel. A nappaliban felszerelésre került 1 db. hűtő-fűtő klíma is.
Parkolás: zárt udvaron belül 1 gépkocsi számára alkalmas fedetlen-felszíni beálló áll rendelkezésre.
EXTRÁK: 1 db. hűtő-fűtő klíma, redőnyök, szúnyoghálók, beépített-gépesített konyhabútor (sütő, főzőlap, elszívó, mosogatógép).
Megközelíthetőség és infrastruktúra kitűnő! Buszmegálló, vonatállomás, buszpályaudvar, közintézmények, bevásárlási lehetőségek pár perc sétával elérhetőek.
További hasonló ingatlanok találhatók még a kínálatunkban!
Szüksége van hitelre? SEGÍTÜNK!
Bankfüggetlen hitel tanácsadónk díjmentesen áll az Ön rendelkezésére! Keressen bizalommal!
A hirdetésben szereplő adatok, információk, képek, alaprajzok stb... tájékoztató jellegűek! Irodánk az esetleges elírásokért felelősséget nem tud vállalni!
Tájékoztatjuk a Tisztelt Érdeklődőket, hogy az ingatlan hirdetésében szereplő telefonszám felhívásával Önök hozzájárulnak személyes adataik (név, telefonszám), a hirdetést feladó -Otthonplusz.hu Kft. - által a bizalmas kezeléshez és nyilvántartáshoz.
Tulajdonságok
Téglalakás
2
Újszerű
Gázkazán
2019
10 m²
Nem adta meg a hirdető
Vedd fel a kapcsolatot a hirdetővel
+36 70 432 5
Hitelkalkulátor
Második évtől
331 330 Ft A 13. hónaptól
7,99%
Végig fix Futamidő: 20 év Banki visszahívás
Az OTP Bank munkatársai a neked megfelelő napszakban veszik fel veled a kapcsolatot.Hitelfelvétel esetén akár egy héttel rövidebb lehet az ügyintézés.
Ez az ingatlan a nálunk meglévő adatok alapján azonnali értékbecslésre alkalmas lehet.
A becslés a hirdető által megadott adatokon alapul. A jelen tájékoztatás nem minősül ajánlattételnek és nem teljes körű, az egyes feltételek a hitelbírálat eredményétől függően változhatnak. Kérjük, a részletekről tájékozódj az OTP Bank fiókjaiban vagy az OTP Bank honlapján közzétett vonatkozó Üzletszabályzatokból és Hirdetményekből.
Vedd fel a kapcsolatot a hirdetővel
+36 70 432 5
Vedd fel a kapcsolatot a hirdetővel
+36 70 432 5
UI_KIT.CHARACTER_COUNTER__COMPONENT.REMAINING_SPACE__SR_ONLYUI_KIT.CHARACTER_COUNTER__COMPONENT.MAXIMUM_CHARACTER__SR_ONLY
Hasonló eladó ingatlanok Érden
Frissítve: 3 napja
14
81,4 M Ft 1 179 711 Ft/m²
Eladó lakás, Érd

Frissítve: 19 napja
20
71,9 M Ft 1 123 438 Ft/m²
Eladó lakás, Érd
Frissítve: 19 napja
18
74,9 M Ft 886 391 Ft/m²
Eladó lakás, Érd


Fedezd fel a
hasonló lakásokat!Még további lakások Érden 76,99 M Ft körüli értékben
Tovább a hirdetésekhez Frissítve: ma
18
74,9 M Ft 891 667 Ft/m²
Eladó lakás, Érd

Frissítve: ma
18
74,9 M Ft 891 667 Ft/m²
Eladó lakás, Érd

Frissítve: 18 napja
18
74,9 M Ft 891 667 Ft/m²
Eladó lakás, Érd


Töltsd fel hirdetésed ingyenesen!
Egyszerű