

+18 fotó
Zenga
Premier
Hirdetéskód: 8748282
Referenciaszám: M315005
Feltöltve: ma
Pápa eladó téglalakás 2 szobás: 52,99 millió Ft
52,99 millió Ft
883 167 Ft/m² *
* A m² árat a hirdető adta meg.
60 m²
2 szoba

Friss hirdetések, amiket nem találsz meg más ingatlankereső portálon.
Fedezd fel elsőként a Zenga Premier címkés eladó ingatlanokat! További részletek A Duna House, OTP Ingatlanpont, Otthon Centrum és további hálózatok új, kizárólagos hirdetéseinek nagy részét a zenga.hu és koltozzbe.hu ingatlankeresőn láthatod legelőször, és a feltöltéstől két hétig nem érhetők el más ingatlankeresőn!
Leírás
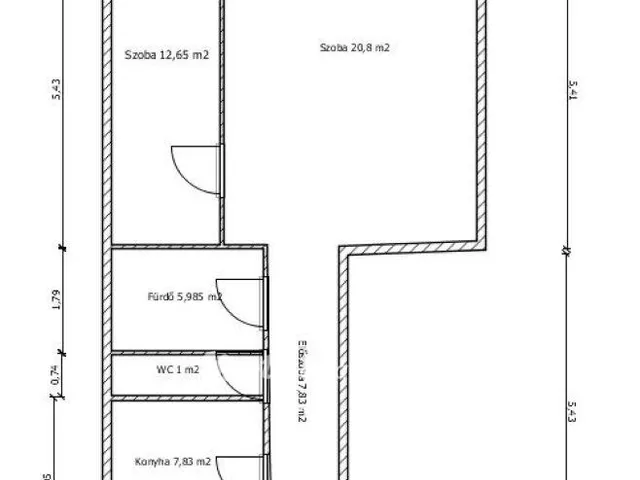
ELADÓ INGATLAN PÁPA BELVÁROSÁBAN! Ne hagyja ki ezt a KIVÉTELES LEHETŐSÉGET, hogy egy rendkívül SOKOLDALÚ ingatlan tulajdonosa legyen, mindössze pár percre a város központjától! A 60 m2-es hasznos alapterületű lakás kettő szobával rendelkezik, így elegendő TÉR áll rendelkezésre egy kényelmes életvitelhez. Az ingatlan fűtése GÁZ CIRKÓ KAZÁNNAL történik egy nagyfokú ENERGIATAKARÉKOSSÁG és HATÉKONYSÁG jellemzi az otthont. A radiátoros hőleadás a hideg téli hónapokban is kényelmet biztosít. Az INGATLAN KIALAKÍTÁSA praktikusan szolgálja a lakók igényeit. ELHELYEZKEDÉSE IDEÁLIS, mindössze 6 perc gyalogtávolságra van Pápa központjától, ahol minden szükséges szolgáltatás elérhető: bevásárlóközpont, iskola, óvoda és orvosi rendelő a közvetlen közelben. Az INGATLAN BESOROLÁSA társasházi lakás, de 300 m2-es közös használatú udvar is tartozik hozzá, amely számtalan KREATÍV LEHETŐSÉGET nyújt a szabadidő hasznos eltöltésére. A házban 11 lakás taláhatól. A lakáshoz garázs is tartozik, mely a vételár részét képezi. 10 éve teljes felújításon esett át. Megtörtént a vezetékek cseréje, új burkolat került kialakításra. A lakásban található összes bútor és berendezés szintén a vételár részét képezi. Ne hagyja ki ezt a KIVÉTELES lehetőséget, tekintse meg személyesen, és legyen része Pápa nyüzsgő, de mégis családias közösségének!
Referenciaszám: M315005
Tulajdonságok
Téglalakás
Újszerű
Gázkazán
1876
Nem adta meg a hirdető
Vedd fel a kapcsolatot a hirdetővel
+36 30 372 5
Hitelkalkulátor
Második évtől
228 045 Ft A 13. hónaptól
7,99%
Végig fix Futamidő: 20 év Banki visszahívás
Az OTP Bank munkatársai a neked megfelelő napszakban veszik fel veled a kapcsolatot. A becslés a hirdető által megadott adatokon alapul. A jelen tájékoztatás nem minősül ajánlattételnek és nem teljes körű, az egyes feltételek a hitelbírálat eredményétől függően változhatnak. Kérjük, a részletekről tájékozódj az OTP Bank fiókjaiban vagy az OTP Bank honlapján közzétett vonatkozó Üzletszabályzatokból és Hirdetményekből.
Vedd fel a kapcsolatot a hirdetővel
+36 30 372 5
Vedd fel a kapcsolatot a hirdetővel
+36 30 372 5
UI_KIT.CHARACTER_COUNTER__COMPONENT.REMAINING_SPACE__SR_ONLYUI_KIT.CHARACTER_COUNTER__COMPONENT.MAXIMUM_CHARACTER__SR_ONLY
Hasonló eladó ingatlanok Belváros városrészben
Frissítve: 18 napja

5
48,52 M Ft 782 613 Ft/m²
Eladó lakás, Pápa, Belváros

Frissítve: 5 napja

18
49,9 M Ft 648 052 Ft/m²
Eladó lakás, Pápa
Frissítve: 21 napja

4
49 M Ft 810 454 Ft/m²
Eladó lakás, Pápa


Fedezd fel a
hasonló lakásokat!Még további lakások Pápán 52,99 M Ft körüli értékben
Tovább a hirdetésekhez Frissítve: 21 napja

6
52,9 M Ft 810 977 Ft/m²
Eladó lakás, Pápa

Frissítve: 21 napja

6
48 M Ft 882 678 Ft/m²
Eladó lakás, Pápa

Feltöltve: 1 éve
0
49 M Ft 376 923 Ft/m²
Eladó lakás, Pápa

Töltsd fel hirdetésed ingyenesen!
Egyszerű