+17 fotó
Hirdetéskód: 8809477
Referenciaszám: M315005-5095148
Feltöltve: ma
Pápa eladó téglalakás 2 szobás: 52,99 millió Ft
52,99 millió Ft
883 167 Ft/m²
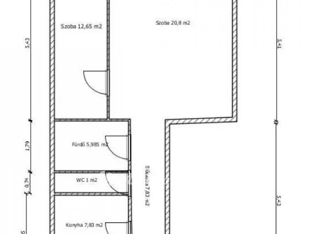
60 m²
2 szoba
földszint
Eladó Lakás, Pápa
ELADÓ INGATLAN PÁPA BELVÁROSÁBAN! Ne hagyja ki ezt a KIVÉTELES LEHETŐSÉGET, hogy egy rendkívül SOKOLDALÚ ingatlan tulajdonosa legyen, mindössze pár percre a város központjától! A 60 m2-es hasznos alapterületű lakás kettő szobával rendelkezik, így elegendő TÉR áll rendelkezésre egy kényelmes életvitelhez. Az ingatlan fűtése GÁZ CIRKÓ KAZÁNNAL történik egy nagyfokú ENERGIATAKARÉKOSSÁG és HATÉKONYSÁG jellemzi az otthont. A radiátoros hőleadás a hideg téli hónapokban is kényelmet biztosít. Az INGATLAN KIALAKÍTÁSA praktikusan szolgálja a lakók igényeit. ELHELYEZKEDÉSE IDEÁLIS, mindössze 6 perc gyalogtávolságra van Pápa központjától, ahol minden szükséges szolgáltatás elérhető: bevásárlóközpont, iskola, óvoda és orvosi rendelő a közvetlen közelben. Az INGATLAN BESOROLÁSA társasházi lakás, de 300 m2-es közös használatú udvar is tartozik hozzá, amely számtalan KREATÍV LEHETŐSÉGET nyújt a szabadidő hasznos eltöltésére. A házban 11 lakás taláhatól. A lakáshoz garázs is tartozik, mely a vételár részét képezi. 10 éve teljes felújításon esett át. Megtörtént a vezetékek cseréje, új burkolat került kialakításra. A lakásban található összes bútor és berendezés szintén a vételár részét képezi. Ne hagyja ki ezt a KIVÉTELES lehetőséget, tekintse meg személyesen, és legyen része Pápa nyüzsgő, de mégis családias közösségének!
Referenciaszám: M315005
Tulajdonságok
Téglalakás
Felújított
Gázkazán
1876
Nem adta meg a hirdető
Vedd fel a kapcsolatot a hirdetővel
+36 30 372 5
Hitelkalkulátor
Második évtől
228 045 Ft A 13. hónaptól
7,99%
Végig fix Futamidő: 20 év Banki visszahívás
Az OTP Bank munkatársai a neked megfelelő napszakban veszik fel veled a kapcsolatot. A becslés a hirdető által megadott adatokon alapul. A jelen tájékoztatás nem minősül ajánlattételnek és nem teljes körű, az egyes feltételek a hitelbírálat eredményétől függően változhatnak. Kérjük, a részletekről tájékozódj az OTP Bank fiókjaiban vagy az OTP Bank honlapján közzétett vonatkozó Üzletszabályzatokból és Hirdetményekből.
Vedd fel a kapcsolatot a hirdetővel
+36 30 372 5
Vedd fel a kapcsolatot a hirdetővel
+36 30 372 5
UI_KIT.CHARACTER_COUNTER__COMPONENT.REMAINING_SPACE__SR_ONLYUI_KIT.CHARACTER_COUNTER__COMPONENT.MAXIMUM_CHARACTER__SR_ONLY
Hasonló eladó ingatlanok Belváros városrészben
Frissítve: 8 napja
20
52,99 M Ft 883 167 Ft/m²
Eladó lakás, Pápa, Belváros

Frissítve: 8 napja
6
52,9 M Ft 810 977 Ft/m²
Eladó lakás, Pápa

Frissítve: 8 napja
6
48 M Ft 882 678 Ft/m²
Eladó lakás, Pápa


Fedezd fel a
hasonló lakásokat!Még további lakások Veszprém megyében 52,99 M Ft körüli értékben
Tovább a hirdetésekhez Feltöltve: 1 éve
0
49 M Ft 376 923 Ft/m²
Eladó lakás, Pápa
Frissítve: 5 napja
20
51,5 M Ft 858 333 Ft/m²
Eladó lakás, Pápa, Felsőváros
Frissítve: 3 hónapja
20
49,5 M Ft 825 000 Ft/m²
Eladó lakás, Pápa, Felsőváros

Töltsd fel hirdetésed ingyenesen!
Egyszerű